新川貸倉庫(4棟募集!!)
ここに注目!【北区新川エリア】新築の貸倉庫の募集です。 倉庫30坪!!上水道・照明・電動シャッター・簡易水洗トイレ(汲み取り式)倉庫前面に駐車場確保です。業種・使用用途等はご確認ください。連棟の契約もご相談くださ
| 賃料・費用 |
22万円
(+管理費等 -円)
坪単価:約8,277円/坪
敷60万円礼なし仲22万円
保証金:なし
|
|---|---|
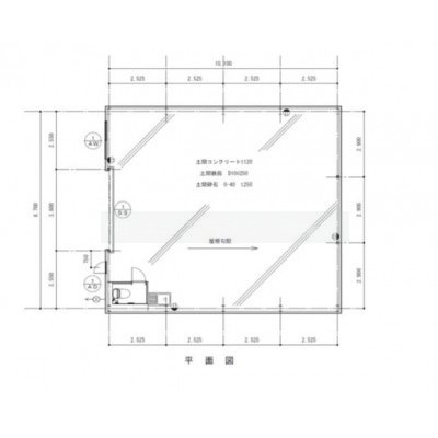
| 専有面積 | 87.9m² (26.58坪) |
| 住所 | 北海道札幌市北区新川 (詳細非公開) |
| 交通 | 発寒駅(徒歩39分)|稲積公園駅(徒歩42分) |
| 階/階建 | 0階建 |
| 築年月 | |
| 駐車場 |
あり (無料)
|
空室確認、見学、詳細を知りたい方はこちら!
お電話の際は「連合隊の物件」とお伝えください。
情報掲載期限:あと20日(更新日 2026/1/14)
- 物件写真・概要
- 周辺地図
-
空室確認、見学、詳細を知りたい方はこちら!
おすすめポイント
- 駐車場あり
交通
- 発寒駅JR函館本線徒歩39分
- 稲積公園駅JR函館本線徒歩42分
物件概要
所在階/建物の階建 貸倉庫B号 / 地上0階建 主要採光面 構造 その他(S(鉄骨造)) 間取り 契約期間 お問合せください 権利金 住宅保険 出店推奨業種 出店不可業種 引渡し 2026年1月上旬 管理人 取引態様 仲介 物件No 設備・特徴 - その他:電気
備考 募集条件:貸倉庫、土地(土場・車両保管)、その他 -
ホームページはこちら
北海道知事 石狩(5) 第6814号
(株)エムズ テナント事業部
※連合隊は物件情報の精度向上に努めています:「物件情報に誤りがある」「成約済みである」などお気付きの点がございましたらこちらよりご連絡ください。
写真枚数:6枚
札幌市内、近郊のテナントのことならエムズへ!
札幌市内はもちろん、札幌市近郊のテナントを取り扱っております!連合隊には載っていない物件も多数取り揃えておりますので、ぜひお問い合わせください!