This1ビル(ジスワンビル)
ここに注目!【白石区/南郷エリア】〈分割相談可能です!〉東西線「白石」駅7番出口そばの複合オフィスビルに空き予定が出ました。交差点斜向かいにはバスターミナルもありダブルアクセス可能。近隣立体駐車場も確保できます。是
| 賃料・費用 |
51万400円
(+管理費等 6万3,800円)
坪単価:約8,799円/坪
敷なし礼なし仲51万400円
保証金:185万6,000円
|
|---|---|
| 専有面積 | 191.8m² (58.01坪) |
| 住所 | 北海道札幌市白石区南郷通1丁目北 |
| 交通 | 白石駅(徒歩4分)|東札幌駅(徒歩16分) |
| 階/階建 | 3階 / 7階建 |
| 築年月 | 築38年(1987年11月) |
| 駐車場 |
あり (1万6,500円/台) 駐車可能台数:15台
|
空室確認、見学、詳細を知りたい方はこちら!
お電話の際は「連合隊の物件」とお伝えください。
情報掲載期限:あと10日(更新日 2026/2/5)
- 物件写真・概要
- 周辺地図
-
空室確認、見学、詳細を知りたい方はこちら!
おすすめポイント
- 駅徒歩5分以内
- 駐車2台以上可
- エアコン付
- 敷金・礼金0円
- 出店するなら…この業種がおすすめ!
- 飲食全般(重飲食含む)

- 喫茶・カフェ(軽飲食)

- バー・クラブ・スナック

- 小売・物販

- 美容・健康・介護

- 医療

- 教育・スクール

- 事務所

- アミューズメント

交通色がついているアイコンをクリックすると、本物件までの道順を見ることができます。
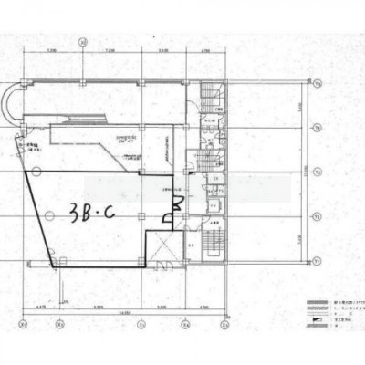
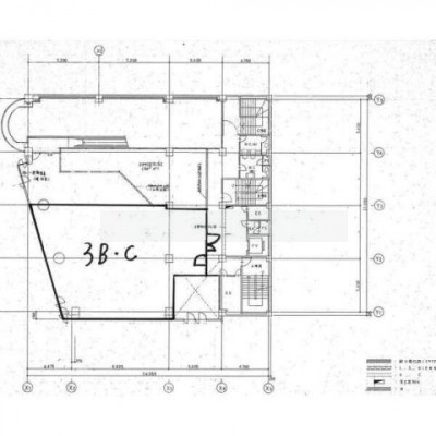
物件概要
所在階/建物の階建 3階(003BC号室) / 地上7階建 主要採光面 構造 鉄骨鉄筋コンクリート(SRC)造 間取り 契約期間 お問合せください 権利金 住宅保険 出店推奨業種 美容・健康・介護、教育・スクール、事務所 出店不可業種 引渡し 相談 管理人 取引態様 仲介 物件No 設備・特徴 - エアコン付
- 照明器具付
- その他:電気・エアコン・照明・タイルカーペット
備考 冷暖房基本料金:月額31900円+使用料、電気基本料:月額26950円+使用料 募集条件:店舗、事務所、その他 -
ホームページはこちら
北海道知事 石狩(5) 第6814号
(株)エムズ テナント事業部
※連合隊は物件情報の精度向上に努めています:「物件情報に誤りがある」「成約済みである」などお気付きの点がございましたらこちらよりご連絡ください。
写真枚数:30枚
札幌市内、近郊のテナントのことならエムズへ!
札幌市内はもちろん、札幌市近郊のテナントを取り扱っております!連合隊には載っていない物件も多数取り揃えておりますので、ぜひお問い合わせください!