JAZZG BASE
ここに注目!【白石区/南郷・栄通エリア】〈新築メディカルビル!〉 整骨院・事務所・福祉・医療・店舗ビジネスなどにおすすめ。スケルトン渡し1階共用部にトイレあり。診療科目が重複する場合お断りさせていただくことがござい
| 賃料・費用 |
22万円
(+管理費等 3万3,000円)
坪単価:約1.0万円/坪
敷60万円礼なし仲22万円
保証金:なし
|
|---|---|
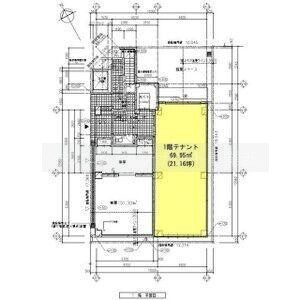
| 専有面積 | 69.95m² (21.15坪) |
| 住所 | 北海道札幌市白石区栄通4丁目 |
| 交通 | 白石駅(徒歩10分)|南郷7丁目駅(徒歩10分) |
| 階/階建 | 1階 / 5階建 |
| 築年月 | |
| 駐車場 |
あり (1万1,000円/台) 駐車可能台数:6台
|
空室確認、見学、詳細を知りたい方はこちら!
お電話の際は「連合隊の物件」とお伝えください。
情報掲載期限:あと21日(更新日 2026/3/10)
- 物件写真・概要
- 周辺地図
-
空室確認、見学、詳細を知りたい方はこちら!
おすすめポイント
- 駐車2台以上可
交通色がついているアイコンをクリックすると、本物件までの道順を見ることができます。
物件概要
所在階/建物の階建 1階(101号室) / 地上5階建 主要採光面 構造 鉄筋コンクリート(RC)造 間取り 契約期間 お問合せください 権利金 住宅保険 出店推奨業種 出店不可業種 引渡し 相談 管理人 取引態様 仲介 物件No 設備・特徴 - その他:電気・ガス・給排水
備考 募集条件:店舗、医療関係、鍼灸・整体・整骨院、その他 -
ホームページはこちら
北海道知事 石狩(5) 第6814号
(株)エムズ テナント事業部
※連合隊は物件情報の精度向上に努めています:「物件情報に誤りがある」「成約済みである」などお気付きの点がございましたらこちらよりご連絡ください。
写真枚数:13枚
札幌市内、近郊のテナントのことならエムズへ!
札幌市内はもちろん、札幌市近郊のテナントを取り扱っております!連合隊には載っていない物件も多数取り揃えておりますので、ぜひお問い合わせください!