タシロビル
ここに注目!【狸小路エリア】貴重な狸小路周辺テナントの募集です。スケルトンで飲食含め業種は相談ください。駐車場はありませんが、コインパーキングが隣接しています。是非お問い合わせください!
| 賃料・費用 |
31万772円
(+管理費等 -円)
坪単価:約1.5万円/坪
敷84万7,560円礼28万2,520円仲31万772円
保証金:なし
|
|---|---|
| 専有面積 | 66.71m² (20.17坪) |
| 住所 | 北海道札幌市中央区南三条西8丁目 |
| 交通 | 資生館小学校前駅(徒歩4分) |
| 階/階建 | 3階 / 4階建 |
| 築年月 | |
| 駐車場 |
なし
|
空室確認、見学、詳細を知りたい方はこちら!
お電話の際は「連合隊の物件」とお伝えください。
情報掲載期限:あと29日(更新日 2026/4/30)
- 物件写真・概要
- 周辺地図
-
空室確認、見学、詳細を知りたい方はこちら!
おすすめポイント
- 即入居可
- 駅徒歩5分以内
交通色がついているアイコンをクリックすると、本物件までの道順を見ることができます。
物件概要
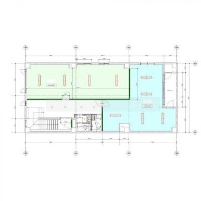
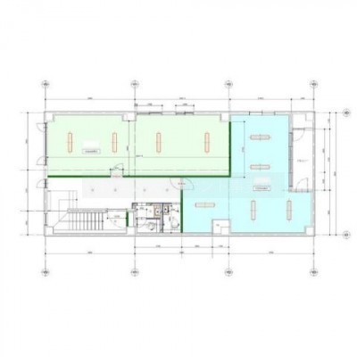
所在階/建物の階建 3階(3F-B号室) / 地上4階建 主要採光面 構造 鉄筋コンクリート(RC)造 間取り 契約期間 お問合せください 権利金 住宅保険 出店推奨業種 出店不可業種 引渡し 即時 管理人 取引態様 仲介 物件No 設備・特徴 - その他:電気・給排水
備考 募集条件:店舗、事務所、医療関係、美容関連、鍼灸・整体・整骨院、理容室・美容室、重飲食、その他 -
ホームページはこちら
北海道知事 石狩(5) 第6814号
(株)エムズ テナント事業部
※連合隊は物件情報の精度向上に努めています:「物件情報に誤りがある」「成約済みである」などお気付きの点がございましたらこちらよりご連絡ください。
写真枚数:12枚
札幌市内、近郊のテナントのことならエムズへ!
札幌市内はもちろん、札幌市近郊のテナントを取り扱っております!連合隊には載っていない物件も多数取り揃えておりますので、ぜひお問い合わせください!