南22西11 A棟テナント
ここに注目!【中央区/山鼻エリア】札幌市電 石山通 徒歩2分の好立地! 駐車場は来客用コインパーキングとなります。 スケルトンでの引渡しとなります。業種、諸費用なんでもご相談ください。
| 賃料・費用 |
25万2,890円
(+管理費等 3,300円)
坪単価:約1.2万円/坪
敷62万7,000円礼なし仲25万2,890円
保証金:なし
|
|---|---|
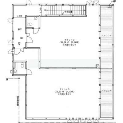
| 専有面積 | 69.28m² (20.95坪) |
| 住所 | 北海道札幌市中央区南二十二条西11丁目 |
| 交通 | 石山通駅(徒歩2分)|東屯田通駅(徒歩5分) |
| 階/階建 | 2階 / 2階建 |
| 築年月 | |
| 駐車場 |
あり (1万3,200円/台) 駐車可能台数:5台
|
空室確認、見学、詳細を知りたい方はこちら!
お電話の際は「連合隊の物件」とお伝えください。
情報掲載期限:あと8日(更新日 2025/11/30)
- 物件写真・概要
- 周辺地図
-
空室確認、見学、詳細を知りたい方はこちら!
おすすめポイント
- 駅徒歩3分以内
- 駐車2台以上可
交通色がついているアイコンをクリックすると、本物件までの道順を見ることができます。
物件概要
所在階/建物の階建 2階(2-C号室) / 地上2階建 主要採光面 構造 間取り 契約期間 お問合せください 権利金 住宅保険 出店推奨業種 出店不可業種 引渡し 相談 管理人 取引態様 仲介 物件No 設備・特徴 - その他:電気
備考 募集条件:店舗、事務所、その他 -
ホームページはこちら
北海道知事 石狩(5) 第6814号
(株)エムズ テナント事業部
※連合隊は物件情報の精度向上に努めています:「物件情報に誤りがある」「成約済みである」などお気付きの点がございましたらこちらよりご連絡ください。
写真枚数:8枚
札幌市内、近郊のテナントのことならエムズへ!
札幌市内はもちろん、札幌市近郊のテナントを取り扱っております!連合隊には載っていない物件も多数取り揃えておりますので、ぜひお問い合わせください!