共栄ビル
ここに注目!【北区/新琴似エリア】新琴似4番通り沿いの2階ワンフロア!学習塾や福祉関係にオススメです!1部間仕切りございますが。撤去可能です!業種・諸条件お問合せ下さい!
| 賃料・費用 |
16万円
(+管理費等 -円)
坪単価:約3,112円/坪
敷48万円(3ヶ月)礼なし仲16万円
保証金:なし
|
|---|---|
| 専有面積 | 170m² (51.42坪) |
| 住所 | 北海道札幌市北区新琴似八条7丁目 |
| 交通 | 新琴似駅(徒歩12分) |
| 階/階建 | 2階 / 2階建 |
| 築年月 | 築45年(1980年1月) |
| 駐車場 |
あり (無料)
|
空室確認、見学、詳細を知りたい方はこちら!
お電話の際は「連合隊の物件」とお伝えください。
情報掲載期限:あと27日(更新日 2025/12/12)
- 物件写真・概要
- 周辺地図
-
空室確認、見学、詳細を知りたい方はこちら!
おすすめポイント
- 駐車場あり
- エアコン付
交通色がついているアイコンをクリックすると、本物件までの道順を見ることができます。
物件概要
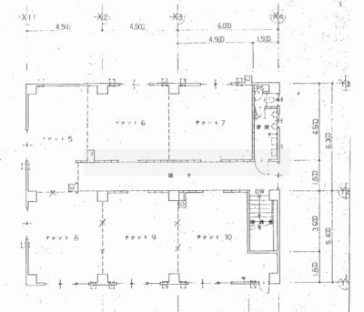
所在階/建物の階建 2階(2階) / 地上2階建 主要採光面 構造 鉄筋コンクリート(RC)造 間取り 契約期間 お問合せください 権利金 住宅保険 出店推奨業種 出店不可業種 引渡し 相談 管理人 取引態様 仲介 物件No 設備・特徴 - 照明器具付
- エアコン付
- その他:電気・ガス・照明(残置物)・給水設備・トイレ(残置)・厨房設備(残置物)・エアコン(残置)
備考 募集条件:店舗、事務所、美容関連、鍼灸・整体・整骨院、その他 -
ホームページはこちら
北海道知事 石狩(5) 第6814号
(株)エムズ テナント事業部
※連合隊は物件情報の精度向上に努めています:「物件情報に誤りがある」「成約済みである」などお気付きの点がございましたらこちらよりご連絡ください。
写真枚数:2枚
札幌市内、近郊のテナントのことならエムズへ!
札幌市内はもちろん、札幌市近郊のテナントを取り扱っております!連合隊には載っていない物件も多数取り揃えておりますので、ぜひお問い合わせください!