NAKAJIMAビル
ここに注目!【定期借家契約】【石狩市エリア】 石狩手稲線沿いの物件に空き予定が出ました。 事務所利用におすすめです。 業種・初期費用等、なんでもご相談下さい。
| 賃料・費用 |
8万8,000円
(+管理費等 7,700円)
坪単価:約8,209円/坪
敷なし礼17万6,000円(2ヶ月)仲8万8,000円
保証金:なし
|
|---|---|
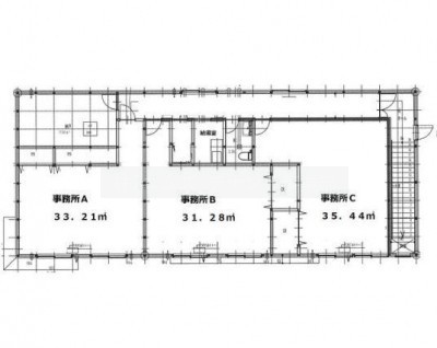
| 専有面積 | 35.44m² (10.72坪) |
| 住所 | 北海道石狩市花畔二条1丁目 |
| 交通 | 百合が原駅(徒歩74分)|太平駅(徒歩76分) |
| 階/階建 | 2階 / 2階建 |
| 築年月 | |
| 駐車場 |
なし
|
空室確認、見学、詳細を知りたい方はこちら!
お電話の際は「連合隊の物件」とお伝えください。
情報掲載期限:あと23日(更新日 2026/2/28)
- 物件写真・概要
- 周辺地図
-
空室確認、見学、詳細を知りたい方はこちら!
交通色がついているアイコンをクリックすると、本物件までの道順を見ることができます。
物件概要
所在階/建物の階建 2階(C号室) / 地上2階建 主要採光面 構造 木造 間取り 契約期間 お問合せください 権利金 住宅保険 引渡し 相談 2026/1/下旬 管理人 取引態様 仲介 物件No 設備・特徴 - その他:電気
備考 募集条件:事務所、その他 -
ホームページはこちら
北海道知事 石狩(5) 第6814号
(株)エムズ テナント事業部
※連合隊は物件情報の精度向上に努めています:「物件情報に誤りがある」「成約済みである」などお気付きの点がございましたらこちらよりご連絡ください。
写真枚数:7枚
札幌市内、近郊のテナントのことならエムズへ!
札幌市内はもちろん、札幌市近郊のテナントを取り扱っております!連合隊には載っていない物件も多数取り揃えておりますので、ぜひお問い合わせください!