イトウビル
ここに注目!【札幌市白石区北郷エリア】 北郷13条通沿いの路面店!近隣にはコンビニ・スーパがあります。駐車場5〜6台あります。おすすめの物件です。 業種、諸費用なんでもご相談ください。
| 賃料・費用 |
16万5,000円
(+管理費等 5,500円)
坪単価:約5,462円/坪
敷45万円礼なし仲16万5,000円
保証金:なし
|
|---|---|
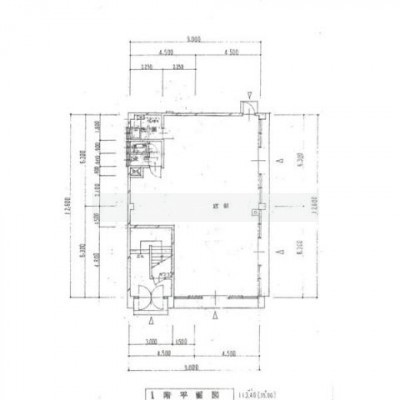
| 専有面積 | 99.9m² (30.21坪) |
| 住所 | 北海道札幌市白石区菊水元町三条2丁目 |
| 交通 | 白石駅(徒歩22分) |
| 階/階建 | 1階 / 3階建 |
| 築年月 | |
| 駐車場 |
あり (3万3,000円/台) 駐車可能台数:5台
|
空室確認、見学、詳細を知りたい方はこちら!
お電話の際は「連合隊の物件」とお伝えください。
情報掲載期限:あと24日(更新日 2025/12/26)
- 物件写真・概要
- 周辺地図
-
空室確認、見学、詳細を知りたい方はこちら!
おすすめポイント
- 駐車2台以上可
交通色がついているアイコンをクリックすると、本物件までの道順を見ることができます。
物件概要
所在階/建物の階建 1階(1階号室) / 地上3階建 主要採光面 構造 その他(S(鉄骨造)) 間取り 契約期間 お問合せください 権利金 住宅保険 出店推奨業種 出店不可業種 引渡し 相談 管理人 取引態様 仲介 物件No 設備・特徴 - その他:電気・給排水
備考 募集条件:店舗、事務所、その他 -
ホームページはこちら
北海道知事 石狩(5) 第6814号
(株)エムズ テナント事業部
※連合隊は物件情報の精度向上に努めています:「物件情報に誤りがある」「成約済みである」などお気付きの点がございましたらこちらよりご連絡ください。
写真枚数:8枚
札幌市内、近郊のテナントのことならエムズへ!
札幌市内はもちろん、札幌市近郊のテナントを取り扱っております!連合隊には載っていない物件も多数取り揃えておりますので、ぜひお問い合わせください!