東雁来町新築倉庫
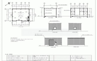
ここに注目!【東雁来町新築倉庫!!】東雁来町新築倉庫物件です!9月完成予定です!26.5坪、電気、上下水道、トイレ、流し台、敷地アスファルト予定 確認申請建物になります。詳細・条件・業種等何でもご相談ください! 倉庫
| 賃料・費用 |
24万2,000円
(+管理費等 -円)
坪単価:約9,102円/坪
敷44万円礼なし仲24万2,000円
保証金:なし
|
|---|---|
| 専有面積 | 87.91m² (26.59坪) |
| 住所 | 北海道札幌市東区東雁来町 (詳細非公開) |
| 交通 | あいの里教育大駅(徒歩79分) |
| 階/階建 | 1階建 |
| 築年月 | |
| 駐車場 |
あり (無料) 駐車可能台数:5台
|
空室確認、見学、詳細を知りたい方はこちら!
お電話の際は「連合隊の物件」とお伝えください。
情報掲載期限:あと14日(更新日 2025/12/10)
- 物件写真・概要
- 周辺地図
-
空室確認、見学、詳細を知りたい方はこちら!
おすすめポイント
- 即入居可
- 駐車2台以上可
交通
- あいの里教育大駅JR札沼線徒歩79分
物件概要
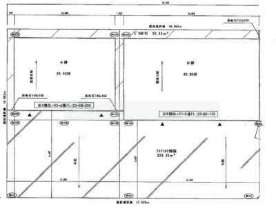
所在階/建物の階建 A棟 / 地上1階建 主要採光面 構造 その他(S(鉄骨造)) 間取り 契約期間 お問合せください 権利金 住宅保険 出店推奨業種 出店不可業種 引渡し 即時 管理人 取引態様 仲介 物件No 設備・特徴 - 照明器具付
- その他:電気・照明・給排水・給水設備・トイレ
備考 保証会社利用必須 募集条件:貸倉庫、土地(土場・車両保管)、その他 -
ホームページはこちら
北海道知事 石狩(5) 第6814号
(株)エムズ テナント事業部
※連合隊は物件情報の精度向上に努めています:「物件情報に誤りがある」「成約済みである」などお気付きの点がございましたらこちらよりご連絡ください。
写真枚数:15枚
札幌市内、近郊のテナントのことならエムズへ!
札幌市内はもちろん、札幌市近郊のテナントを取り扱っております!連合隊には載っていない物件も多数取り揃えておりますので、ぜひお問い合わせください!