EJI BLD
ここに注目!【北区/北12条エリア】2025年2月の新築ビルです!地下鉄さっぽろ駅・北12条駅、徒歩圏内の好立地物件です!さっぽろ駅すぐそばの好立地な新築物件です!ハイスペックビルが募集開始となりました!業種、諸費用なんで
| 賃料・費用 |
100万4,850円
(+管理費等 2万2,000円)
坪単価:約1.6万円/坪
敷274万500円礼91万3,500円仲100万4,850円
保証金:なし
|
|---|---|
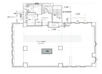
| 専有面積 | 211.37m² (63.93坪) |
| 住所 | 北海道札幌市北区北十一条西1丁目 |
| 交通 | 北12条駅(徒歩5分) |
| 階/階建 | 2階 / 7階建 |
| 築年月 | |
| 駐車場 |
なし
|
空室確認、見学、詳細を知りたい方はこちら!
お電話の際は「連合隊の物件」とお伝えください。
情報掲載期限:あと7日(更新日 2025/11/30)
- 物件写真・概要
- 周辺地図
-
空室確認、見学、詳細を知りたい方はこちら!
おすすめポイント
- 即入居可
- 駅徒歩5分以内
交通色がついているアイコンをクリックすると、本物件までの道順を見ることができます。
物件概要
所在階/建物の階建 2階(2階号室) / 地上7階建 主要採光面 構造 鉄筋コンクリート(RC)造 間取り 契約期間 お問合せください 権利金 住宅保険 引渡し 即時 管理人 取引態様 仲介 物件No 設備・特徴 - 照明器具付
- その他:電気・ガス(都市ガス)・個別冷暖房・照明
備考 募集条件:事務所 -
ホームページはこちら
北海道知事 石狩(5) 第6814号
(株)エムズ テナント事業部
※連合隊は物件情報の精度向上に努めています:「物件情報に誤りがある」「成約済みである」などお気付きの点がございましたらこちらよりご連絡ください。
写真枚数:11枚
札幌市内、近郊のテナントのことならエムズへ!
札幌市内はもちろん、札幌市近郊のテナントを取り扱っております!連合隊には載っていない物件も多数取り揃えておりますので、ぜひお問い合わせください!