ふじビル
ここに注目!【札幌市白石区エリア】 南郷通沿いの好立地なテナントです。 分割貸しも可能です。設備はすべて残置物になるため不要であれば撤去可能です。業種、諸費用なんでもご相談ください。
| 賃料・費用 |
22万円
(+管理費等 -円)
坪単価:約6,163円/坪
敷60万円礼なし仲22万円
保証金:なし
|
|---|---|
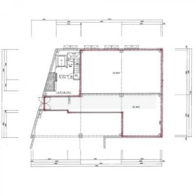
| 専有面積 | 118.02m² (35.7坪) |
| 住所 | 北海道札幌市白石区菊水五条2丁目 |
| 交通 | 菊水駅(徒歩6分) |
| 階/階建 | 1階 / 2階建 |
| 築年月 | |
| 駐車場 |
なし
|
空室確認、見学、詳細を知りたい方はこちら!
お電話の際は「連合隊の物件」とお伝えください。
情報掲載期限:あと23日(更新日 2026/2/28)
- 物件写真・概要
- 周辺地図
-
空室確認、見学、詳細を知りたい方はこちら!
交通色がついているアイコンをクリックすると、本物件までの道順を見ることができます。
物件概要
所在階/建物の階建 1階(1階号室) / 地上2階建 主要採光面 構造 間取り 契約期間 お問合せください 権利金 住宅保険 出店推奨業種 出店不可業種 引渡し 相談 管理人 取引態様 仲介 物件No 設備・特徴 - その他:電気
備考 募集条件:店舗、事務所、その他 -
ホームページはこちら
北海道知事 石狩(5) 第6814号
(株)エムズ テナント事業部
※連合隊は物件情報の精度向上に努めています:「物件情報に誤りがある」「成約済みである」などお気付きの点がございましたらこちらよりご連絡ください。
写真枚数:2枚
札幌市内、近郊のテナントのことならエムズへ!
札幌市内はもちろん、札幌市近郊のテナントを取り扱っております!連合隊には載っていない物件も多数取り揃えておりますので、ぜひお問い合わせください!