曙2条倉庫・事務所
ここに注目!【専任】【札幌手稲工業団地内】当社礼金ございません。工業専用地域にある倉庫事務所です。内覧希望・業種についてはお問い合わせください。事務所13.78坪 倉庫125坪ございます。敷地は693坪あります。敷地はもう
| 賃料・費用 |
62万7,000円
(+管理費等 -円)
坪単価:約4,519円/坪
敷171万円礼なし仲62万7,000円
保証金:なし
|
|---|---|
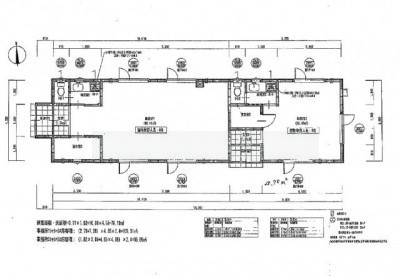
| 専有面積 | 458.77m² (138.77坪) |
| 住所 | 北海道札幌市手稲区曙二条3丁目 |
| 交通 | 稲穂駅(徒歩12分)|手稲駅(徒歩14分) |
| 階/階建 | 0階建 |
| 築年月 | |
| 駐車場 |
あり (無料) 駐車可能台数:10台
|
空室確認、見学、詳細を知りたい方はこちら!
お電話の際は「連合隊の物件」とお伝えください。
情報掲載期限:あと28日(更新日 2026/4/2)
- 物件写真・概要
- 周辺地図
-
空室確認、見学、詳細を知りたい方はこちら!
おすすめポイント
- 駐車2台以上可
交通色がついているアイコンをクリックすると、本物件までの道順を見ることができます。
物件概要
所在階/建物の階建 倉庫付事務所 / 地上0階建 主要採光面 構造 その他(S(鉄骨造)) 間取り 契約期間 お問合せください 権利金 住宅保険 出店推奨業種 出店不可業種 引渡し 相談 管理人 取引態様 仲介 物件No 設備・特徴 - 照明器具付
- その他:電気・照明・給排水・給水設備・トイレ
備考 保証会社利用必須 募集条件:貸倉庫、土地(土場・車両保管)、その他 -
ホームページはこちら
北海道知事 石狩(5) 第6814号
(株)エムズ テナント事業部
※連合隊は物件情報の精度向上に努めています:「物件情報に誤りがある」「成約済みである」などお気付きの点がございましたらこちらよりご連絡ください。
写真枚数:17枚
札幌市内、近郊のテナントのことならエムズへ!
札幌市内はもちろん、札幌市近郊のテナントを取り扱っております!連合隊には載っていない物件も多数取り揃えておりますので、ぜひお問い合わせください!