手稲富岡クリニック跡
ここに注目!【手稲エリア】国道5号線沿い大型テナントの募集です。元クリニックで242坪、駐車場20台分ございます。スケルトン渡しとなりクリニックだけでなく物販店などにもご利用いただけます。諸条件ご相談ください!
| 賃料・費用 |
104万5,000円
(+管理費等 -円)
坪単価:約4,315円/坪
敷570万円礼なし仲104万5,000円
保証金:なし
|
|---|---|
| 専有面積 | 800.75m² (242.22坪) |
| 住所 | 北海道札幌市手稲区富丘二条7丁目 |
| 交通 | 手稲駅(徒歩9分)|稲積公園駅(徒歩12分) |
| 階/階建 | 1階 / 2階建 |
| 築年月 | 築19年(2006年9月) |
| 駐車場 |
あり (無料) 駐車可能台数:20台
|
空室確認、見学、詳細を知りたい方はこちら!
お電話の際は「連合隊の物件」とお伝えください。
情報掲載期限:あと25日(更新日 2025/12/26)
- 物件写真・概要
- 周辺地図
-
空室確認、見学、詳細を知りたい方はこちら!
おすすめポイント
- 駐車2台以上可
- エアコン付
交通色がついているアイコンをクリックすると、本物件までの道順を見ることができます。
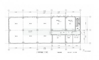
物件概要
所在階/建物の階建 1階(1棟号室) / 地上2階建 主要採光面 構造 鉄筋コンクリート(RC)造 間取り 契約期間 お問合せください 権利金 住宅保険 出店推奨業種 出店不可業種 引渡し 相談 管理人 取引態様 仲介 物件No 設備・特徴 - エアコン付
- その他:電気・エアコン・給排水・トイレ
備考 募集条件:店舗、事務所、医療関係、美容関連、鍼灸・整体・整骨院、理容室・美容室、その他 -
ホームページはこちら
北海道知事 石狩(5) 第6814号
(株)エムズ テナント事業部
※連合隊は物件情報の精度向上に努めています:「物件情報に誤りがある」「成約済みである」などお気付きの点がございましたらこちらよりご連絡ください。
写真枚数:3枚
札幌市内、近郊のテナントのことならエムズへ!
札幌市内はもちろん、札幌市近郊のテナントを取り扱っております!連合隊には載っていない物件も多数取り揃えておりますので、ぜひお問い合わせください!