N23ビル
ここに注目!【北24条エリア】西5丁目通り沿いビルの1室で、通り側の区画の募集です。南北線「北24条」駅徒歩3分の好立地。飲食・ペット関連・就労支援は不可です。室内トイレ有、床は張替えが必要です。諸条件ご相談ください!
| 賃料・費用 |
12万8,095円
(+管理費等 2万5,619円)
坪単価:約5,503円/坪
敷34万9,350円礼なし仲12万8,095円
保証金:なし
|
|---|---|
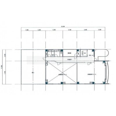
| 専有面積 | 76.99m² (23.28坪) |
| 住所 | 北海道札幌市北区北二十三条西5丁目 |
| 交通 | 北24条駅(徒歩3分)|北18条駅(徒歩12分) |
| 階/階建 | 2階 / 0階建 |
| 築年月 | 築35年(1990年12月) |
| 駐車場 |
なし
|
空室確認、見学、詳細を知りたい方はこちら!
お電話の際は「連合隊の物件」とお伝えください。
情報掲載期限:あと15日(更新日 2025/11/30)
- 物件写真・概要
- 周辺地図
-
空室確認、見学、詳細を知りたい方はこちら!
おすすめポイント
- 駅徒歩3分以内
交通色がついているアイコンをクリックすると、本物件までの道順を見ることができます。
物件概要
所在階/建物の階建 2階(3F-A号室) / 地上0階建 主要採光面 構造 その他(S(鉄骨造)) 間取り 契約期間 お問合せください 権利金 住宅保険 出店推奨業種 出店不可業種 引渡し 相談 管理人 取引態様 仲介 物件No 設備・特徴 - その他:電気・給排水
備考 電気基本料:12598円(税別) 水道基本料:4098円(税別) 募集条件:店舗、事務所、医療関係、美容関連、鍼灸・整体・整骨院、理容室・美容室 -
ホームページはこちら
北海道知事 石狩(5) 第6814号
(株)エムズ テナント事業部
※連合隊は物件情報の精度向上に努めています:「物件情報に誤りがある」「成約済みである」などお気付きの点がございましたらこちらよりご連絡ください。
写真枚数:2枚
札幌市内、近郊のテナントのことならエムズへ!
札幌市内はもちろん、札幌市近郊のテナントを取り扱っております!連合隊には載っていない物件も多数取り揃えておりますので、ぜひお問い合わせください!