和食居抜き店舗~すすきの
ここに注目!和食の飲食店舗居抜き物件です。権利譲渡で厨房機器・食器類が全て揃っているので すぐに営業可能です。内覧可能となっております。
この物件は 寿司屋 料亭・和食屋 居酒屋 の居抜き物件です。
現状の設備が残されたまま取引されるため、初期費用を抑え速やかに事業を開始できるメリットがあります。
| 賃料・費用 |
24万6,389円
(+管理費等 5万683円)
坪単価:約1.4万円/坪
敷68万9,200円礼なし仲24万6,389円
保証金:なし
|
|---|---|
| 専有面積 | 56.96m² (17.23坪) |
| 住所 | 北海道札幌市中央区南五条西3丁目8 |
| 交通 | すすきの駅(徒歩1分)|豊水すすきの駅(徒歩4分) |
| 階/階建 | 4階 / 6階建 |
| 築年月 | 築63年(1962年12月) |
| 駐車場 |
【WEB面談可】
空室確認、見学、詳細を知りたい方はこちら!
お電話の際は「連合隊の物件」とお伝えください。
情報掲載期限:あと27日(更新日 2026/2/20)
- 物件写真・概要
- 周辺地図
-
▼クリックで左の拡大画像が変わります。 すべての写真を拡大
【WEB面談可】
空室確認、見学、詳細を知りたい方はこちら!おすすめポイント
- 駅徒歩1分以内
- 商店街に面す
- 光ファイバー
- 出店するなら…この業種がおすすめ!
- 飲食全般(重飲食含む)

- 喫茶・カフェ(軽飲食)

- バー・クラブ・スナック

- 小売・物販

- 美容・健康・介護

- 医療

- 教育・スクール

- 事務所

- アミューズメント

交通色がついているアイコンをクリックすると、本物件までの道順を見ることができます。
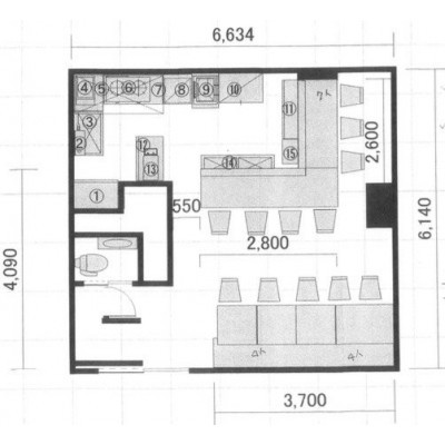
物件概要
所在階/建物の階建 4階 / 地上6階建 主要採光面 構造 鉄筋コンクリート(RC)造 間取り 契約期間 3年間 権利金 300万円 住宅保険 出店推奨業種 飲食全般(重飲食含む) 出店不可業種 居抜き情報 [寿司屋、料亭・和食屋、居酒屋] の居抜きその他費用 その他 - 看板製作料:2万2,000円
- 名義変更手数料:24万6,389円
引渡し 相談 管理人 取引態様 仲介 物件No 設備・特徴 - エアコン付
- ブロードバンド回線(光ファイバー等の高速インターネット)
- 商店街に面す
- その他:公共下水・エアコン・光回線・エレベーター・上下水道
備考 看板料 3300円(月額) 衛生料 3791円(月額) 店舗 室内にお手洗いあります。南北線 すすきの駅まで徒歩1分の好立地です。お気軽にお問い合わせください。 主な周辺施設色がついているアイコンをクリックすると、本物件までの道順を見ることができます。
-
ホームページはこちら
北海道知事 石狩(2) 第8395号
(株)ベーシック不動産 【WEB面談可】〒064-0804
北海道札幌市中央区南四条西12丁目1304-4
メゾンロワール412・1FTEL:011-562-6556
FAX:011-562-6550
営業時間:9:30~18:30
定休日:毎週 水曜・祝日
- 加入団体
- (公社)北海道宅地建物取引業協会
- 保証協会
- (公社)全国宅地建物取引業保証協会
※連合隊は物件情報の精度向上に努めています:「物件情報に誤りがある」「成約済みである」などお気付きの点がございましたらこちらよりご連絡ください。
写真枚数:16枚
ファミリーマート・札幌すすきの店まで94m
サツドラ すすきの店まで171m
ラウンドワン 札幌すすきの店まで147m
Daiichiまで194m
札幌市内の住まい探しなら 迷わずベーシック不動産へご連絡ください。必ずお力になります!!
「業者側が貸したい・売りたい物件ばかりを推しだされた」こんな経験はありませんか? 弊社では、お客様にとって最良の物件を紹介し、お客様が納得されるまで、誠心誠意付き合うことを営業の指針としています。