桃園複合ビル1F居抜店舗☆
ここに注目!福岡県北九州市八幡東区、桃園エリアに新しいビジネスチャンスが広がる「桃園複合ビル1F」のご紹介です。1階の路面店で視認性も高く、幹線道路沿いという立地は集客にも期待が持てますね。 こちらの物件はうどん屋さんの居抜きなので、開業コストを抑えたい方に嬉しいポイント。使える設備は全て無償貸与、さらに敷金・礼金もゼロで初期費用をぐっと抑えられます。広々90.58㎡(約27.4坪)の空間にはエアコンや照明器具、男女別トイレも完備。無料駐車場もございますので、お客様もスタッフの方も安心して利用いただけます。 周辺にはコンビニ、スーパー、飲食店、ホームセンターなどが充実しており、日常的な集客が見込めるでしょう。飲食全般はもちろん、美容・医療系など幅広い業種に対応可能。ご希望に応じて最大35坪程度まで契約面積を広げることもできますので、ぜひご相談ください。新しい事業のスタートを、この場所で叶えませんか?
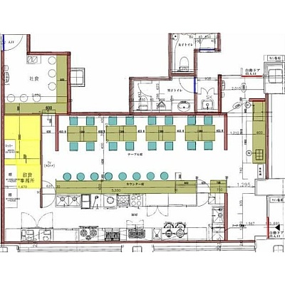
この物件は うどん屋 の居抜き物件です。
現状の設備が残されたまま取引されるため、初期費用を抑え速やかに事業を開始できるメリットがあります。
この物件の契約期間は 3年間です。
定期借家物件は、賃貸借契約期間満了後、原則として契約の更新ができない物件です。再契約の可否については不動産会社にお問合せください。
| 賃料・費用 |
18万840円
(+管理費等 -円)
坪単価:約6,600円/坪
敷なし礼なし仲18万840円
|
|---|---|
| 専有面積 | 90.58m² (27.4坪) |
| 住所 | 福岡県北九州市八幡東区桃園2-1-20 |
| 交通 | 八幡駅(徒歩16分)|黒崎駅(徒歩22分)道順を見る |
| 階/階建 | 路面 / 6階建 |
| 築年月 | 築30年(1995年11月) |
| 駐車場 |
あり (無料)
|
【WEB面談可】
空室確認、見学、詳細を知りたい方はこちら!
お電話の際は「連合隊の物件」とお伝えください。
新着 情報掲載期限:あと27日(更新日 2026/3/14)
- 物件写真・概要
- 周辺地図
-
【WEB面談可】
空室確認、見学、詳細を知りたい方はこちら!おすすめポイント
- 路面店
- 幹線道路沿い
- 駐車場あり
- 造作譲渡料無料
- 敷金・礼金0円
- 出店するなら…この業種がおすすめ!
- 飲食全般(重飲食含む)

- 喫茶・カフェ(軽飲食)

- バー・クラブ・スナック

- 小売・物販

- 美容・健康・介護

- 医療

- 教育・スクール

- 事務所

- アミューズメント

交通色がついているアイコンをクリックすると、本物件までの道順を見ることができます。
物件概要
所在階/建物の階建 1階 / 地上6階建 主要採光面 構造 鉄骨造 間取り 契約期間 定期借家(3年間) 権利金 住宅保険 出店推奨業種 飲食全般(重飲食含む)、美容・健康・介護、医療 出店不可業種 居抜き情報 [うどん屋] の居抜き造作譲渡料 無料 特記事項 使えるもの全て無償貸与 引渡し 2026年10月初旬 管理人 取引態様 仲介 物件No 設備・特徴 - 幹線道路沿い
- 照明器具付
- ガス設備
- 給排水設備
- エアコン付
- 路面店
- 男女別トイレ
備考 現況優先! 飲食店向き! 敷金礼金無し! 居抜き物件! 駐車場無料! 物販店舗向き! 美容業向き! 医療向き! 塾・各種教室向き! 事務所向き! 諸条件相談可! ※内覧ご希望の際は事前のご予約お願い致します!※35坪程度まで契約面積広げて契約も可能(賃料坪6,600円計算)! 主な周辺施設色がついているアイコンをクリックすると、本物件までの道順を見ることができます。
-

この物件の担当者 平山(ヒラヤマ)
他にも北九州圏内全ての物件取扱っておりますのでお気軽にお問い合わせください♪ ご希望の物件に必ず出会えます☆
ホームページはこちら福岡県知事 (1) 第20256号
(株)ヒットホーム 【WEB面談可】〒802-0077
福岡県北九州市小倉北区馬借1丁目11-6
ヒット馬借テラス 1FTEL:093-521-1023
FAX:093-521-1114
営業時間:9:00~18:00
定休日:毎週 日曜・祝日
- 加入団体
- (公社)全日本不動産協会
- 保証協会
- (公社)不動産保証協会
※連合隊は物件情報の精度向上に努めています:「物件情報に誤りがある」「成約済みである」などお気付きの点がございましたらこちらよりご連絡ください。
写真枚数:2枚












北九州の不動産の事ならヒットホームにお任せください!
賃貸・貸テナント・各種売買物件・収益物件売買まで幅広く取り扱っております!各分野に精通したスタッフが親切と誠実さを持って御希望に沿った物件を、お探しします!是非お気軽にご連絡ください!