湯川飲食店跡
ここに注目!福岡県北九州市小倉南区湯川に、飲食店開業にふさわしい貸店舗が登場しました! 約99.2㎡の広々とした空間は、寿司屋の居抜き物件として、重飲食から軽飲食まで幅広い業態に対応可能です。 幹線道路沿いの路面店で、前面ガラス張りは高い視認性を誇り、集客力向上に貢献します。 エアコン、照明器具、ガス設備、給排水設備が完備されており、スムーズな開業をサポート。 郵便局まで徒歩1分、コンビニまで徒歩4分と日常使いに便利な施設が身近に揃い、駅まで徒歩圏内という利便性も兼ね備えています。 かつて飲食店として賑わったこの場所で、あなたの新しいビジネスを始めてみませんか? ご興味をお持ちいただけましたら、ぜひ内覧をご予約ください!
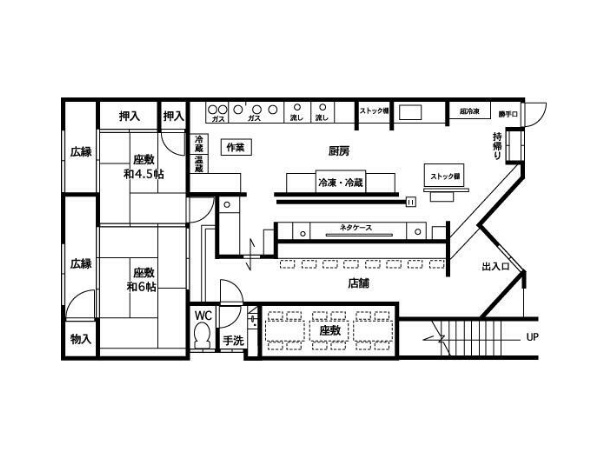
この物件は 寿司屋 の居抜き物件です。
現状の設備が残されたまま取引されるため、初期費用を抑え速やかに事業を開始できるメリットがあります。
| 賃料・費用 |
24万2,000円
(+管理費等 -円)
坪単価:約8,067円/坪
敷44万円礼22万円仲24万2,000円
|
|---|---|
| 専有面積 | 99.2m² (30坪) |
| 住所 | 福岡県北九州市小倉南区湯川5-1-6 |
| 交通 | |
| 階/階建 | 2階建 |
| 築年月 | 築53年(1972年7月) |
| 駐車場 |
なし
|
【WEB面談可】
空室確認、見学、詳細を知りたい方はこちら!
お電話の際は「連合隊の物件」とお伝えください。
情報掲載期限:あと24日(更新日 2025/12/24)
- 物件写真・概要
- 周辺地図
-
【WEB面談可】
空室確認、見学、詳細を知りたい方はこちら!おすすめポイント
- 即入居可
- 幹線道路沿い
- 光ファイバー
- 出店するなら…この業種がおすすめ!
- 飲食全般(重飲食含む)

- 喫茶・カフェ(軽飲食)

- バー・クラブ・スナック

- 小売・物販

- 美容・健康・介護

- 医療

- 教育・スクール

- 事務所

- アミューズメント

物件概要
所在階/建物の階建 地上2階建 主要採光面 構造 木造 間取り 契約期間 3年間 権利金 住宅保険 出店推奨業種 飲食全般(重飲食含む)、喫茶・カフェ(軽飲食) 出店不可業種 居抜き情報 [寿司屋] の居抜き引渡し 即時 管理人 取引態様 仲介 物件No 設備・特徴 - 幹線道路沿い
- 照明器具付
- ガス設備
- 給排水設備
- エアコン付
- ブロードバンド回線(光ファイバー等の高速インターネット)
- 前面ガラス張り
備考 現況優先! 飲食店向き! 居抜き物件! 路面店! ※内覧ご希望の際は事前のご予約お願い致します! 喫茶店! BAR! 重飲食! 軽飲食! トイレあり! 駅まで徒歩圏内! 主な周辺施設色がついているアイコンをクリックすると、本物件までの道順を見ることができます。
-
ホームページはこちら
福岡県知事 (1) 第20256号
(株)ヒットホーム 【WEB面談可】〒802-0077
福岡県北九州市小倉北区馬借1丁目11-6
ヒット馬借テラス 1FTEL:093-521-1023
FAX:093-521-1114
営業時間:9:00~18:00
定休日:毎週 日曜・祝日
- 加入団体
- (公社)全日本不動産協会
- 保証協会
- (公社)不動産保証協会
※連合隊は物件情報の精度向上に努めています:「物件情報に誤りがある」「成約済みである」などお気付きの点がございましたらこちらよりご連絡ください。
写真枚数:13枚












北九州の不動産の事ならヒットホームにお任せください!
賃貸・貸テナント・各種売買物件・収益物件売買まで幅広く取り扱っております!各分野に精通したスタッフが親切と誠実さを持って御希望に沿った物件を、お探しします!是非お気軽にご連絡ください!