多の津貸倉庫事務所
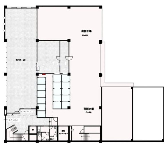
ここに注目!【福岡流通センター内】約89坪の広々貸倉庫事務所! 福岡市東区多の津1丁目、物流の要衝「福岡流通センター」内に位置する「多の津貸倉庫事務所」をご紹介します。 広々とした専有面積294.87㎡(約89.2坪)を誇る鉄骨造の物件です。事務所スペースが設けられているため、オフィス機能と倉庫機能を連携させ、業務効率を高めたい企業様に配慮した設計となっています。 エレベーター完備で、大型荷物の搬入出もスムーズ。駐車場は4台分確保可能ですので(別途費用)、従業員の方や来客用にも便利にご利用いただけます。 周辺にはTRIAL GO(徒歩2分)、コンビニ(徒歩3分)をはじめ、飲食店や銀行、郵便局などが揃い、日常業務をサポートする環境が整っています。 【物流倉庫】【作業所】【事務所】など、幅広い業種に対応可能です。特に、商品の一元管理や配送拠点をお探しの方におすすめです。 諸条件も柔軟にご相談に応じますので、ご希望をぜひお聞かせください。現在使用中のため、内覧は事前のご予約をお願いいたします。 この機会に、ぜひ一度ご検討ください!
| 賃料・費用 |
49万5,000円
(+管理費等 -円)
坪単価:約5,550円/坪
敷90万円礼45万円仲49万5,000円
|
|---|---|
| 専有面積 | 294.87m² (89.19坪) |
| 住所 | 福岡県福岡市東区多の津1-10-1 |
| 交通 | 柚須駅(徒歩27分)|箱崎駅(徒歩34分)|箱崎九大前駅(徒歩40分)|箱崎宮前駅(徒歩45分)道順を見る |
| 階/階建 | 1階 / 4階建 |
| 築年月 | 築52年(1973年1月) |
| 駐車場 |
あり (1万3,200円/台) 駐車可能台数:4台
|
【WEB面談可】
空室確認、見学、詳細を知りたい方はこちら!
お電話の際は「連合隊の物件」とお伝えください。
情報掲載期限:あと28日(更新日 2025/12/22)
- 物件写真・概要
- 周辺地図
-
【WEB面談可】
空室確認、見学、詳細を知りたい方はこちら!おすすめポイント
- 駐車2台以上可
- 事務所付
- 出店するなら…この業種がおすすめ!
- 飲食全般(重飲食含む)

- 喫茶・カフェ(軽飲食)

- バー・クラブ・スナック

- 小売・物販

- 美容・健康・介護

- 医療

- 教育・スクール

- 事務所

- アミューズメント

その他…倉庫事務所
交通色がついているアイコンをクリックすると、本物件までの道順を見ることができます。
- 柚須駅福北ゆたか線徒歩27分(約2.1km)
- 箱崎駅JR鹿児島本線徒歩34分(約2.7km)
- 箱崎九大前駅福岡市営地下鉄箱崎線徒歩40分(約3.2km)
- 箱崎宮前駅福岡市営地下鉄箱崎線徒歩45分(約3.6km)
物件概要
所在階/建物の階建 1階(101) / 地上4階建 主要採光面 構造 鉄骨造 間取り 契約期間 2年間 権利金 住宅保険 出店推奨業種 事務所、その他(倉庫事務所) 出店不可業種 引渡し 相談(11月末まで使用中) 管理人 取引態様 仲介 物件No 設備・特徴 - エレベーター
- 事務所付
備考 現況優先! 事務所向き! 物流倉庫向き! 貸倉庫! 作業所向き! 諸条件相談可! ※内覧ご希望の際は事前のご予約お願い致します! 主な周辺施設色がついているアイコンをクリックすると、本物件までの道順を見ることができます。
-

この物件の担当者 平山(ヒラヤマ)
他にも北九州圏内全ての物件取扱っておりますのでお気軽にお問い合わせください♪ ご希望の物件に必ず出会えます☆
ホームページはこちら福岡県知事 (1) 第20256号
(株)ヒットホーム 【WEB面談可】〒802-0077
福岡県北九州市小倉北区馬借1丁目11-6
ヒット馬借テラス 1FTEL:093-521-1023
FAX:093-521-1114
営業時間:9:00~18:00
定休日:毎週 日曜・祝日
- 加入団体
- (公社)全日本不動産協会
- 保証協会
- (公社)不動産保証協会
※連合隊は物件情報の精度向上に努めています:「物件情報に誤りがある」「成約済みである」などお気付きの点がございましたらこちらよりご連絡ください。
写真枚数:10枚












北九州の不動産の事ならヒットホームにお任せください!
賃貸・貸テナント・各種売買物件・収益物件売買まで幅広く取り扱っております!各分野に精通したスタッフが親切と誠実さを持って御希望に沿った物件を、お探しします!是非お気軽にご連絡ください!