アーティックス上富野グランゲート
ここに注目!小倉北区上富野の分譲賃貸マンションの紹介です! 2019年築・RC造14階建ての築浅物件で、分譲ならではの高品質な設備と安心の管理体制が魅力です。 室内はシステムキッチン(IH・食洗機付)、浴室乾燥機、追焚機能、床暖房、ウォークインクローゼットなど快適設備を完備。さらにリビングにはアコーディオン式の大開口窓を採用しており、春や秋には窓を全開にして爽やかな風と光を取り込み、開放的で優雅な時間をお楽しみいただけます。 共用部分にはオートロック、防犯カメラ、宅配ボックスなどセキュリティと利便性を兼ね備えた設備を整備。駐車場も1台分を確保済みでカーライフも安心です。 周辺にはナフコ、マルショク、ドラッグストア、しまむらなど商業施設が充実しており、毎日の買い物にも便利。富野小学校・中学校も徒歩圏内で、子育て世帯にもおすすめの住環境です。
| 賃料・費用 |
13万5,000円(+管理費等 5,000円)
敷なし礼27万円(2ヶ月)仲14万8,500円
|
|---|---|
| 間取・専有 |
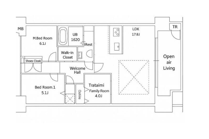
3LDK(74.31m²)└ LDK17.8帖 洋室6.1帖 洋室5.1帖 和室4帖
|
| 住所 | 福岡県北九州市小倉北区上富野2-11-4 |
| 交通 | 小倉駅(徒歩26分)|平和通駅(徒歩26分)道順を見る |
| 築年月 | 築6年(2019年11月) |
| 駐車場 |
あり 駐車可能台数:1台
|
【WEB面談可】
空室確認、見学、詳細を知りたい方はこちら!
お電話の際は「連合隊の物件」とお伝えください。
情報掲載期限:あと10日(更新日 2025/11/17)
- 物件写真・概要
- 周辺地図
-
【WEB面談可】
空室確認、見学、詳細を知りたい方はこちら!おすすめポイント
- バス/トイレ別
- オートロック
- 2階以上
- 都市ガス
- 室内洗濯機置場
- 駐車場あり
- エアコン付
- 独立洗面台
- 追い焚き風呂
- ペット相談可
- デザイナーズ
- 敷金・礼金0円
- 近くて便利!徒歩5分以内にある施設
- 5分
5分- 2分
2分- 周辺施設を地図で確認
交通色がついているアイコンをクリックすると、本物件までの道順を見ることができます。
物件概要
所在階/建物の階建 7階 / 地上14階建 総戸数 主要採光面 南 構造 鉄筋コンクリート(RC)造 バルコニー あり(18.31m²)契約期間 2年間 住宅保険 その他費用 毎月の費用 - 継続保証料+火災保険+引落し手数料:1,790円
一時金 - 退去時室内清掃代:4万9,500円
入居可能時期 即時 管理人 取引態様 仲介 物件No 設備・特徴 - 分譲タイプ
- エレベーター
- 24時間ゴミ出し可
- バイク置き場
- 屋内駐車場
- 駐輪場
- デザイナーズ
- 日当り良好
- フローリング
- 室内洗濯機置場
- ウォークインクローゼット
- シューズボックス
- バス/トイレ別
- 温水洗浄トイレ
- 独立洗面台
- シャワー付洗面化粧台
- 浴室乾燥機
- 追い焚き風呂
- IHクッキングヒーター
- コンロ3口以上
- システムキッチン
- 都市ガス
- 床暖房
- オートロック
- モニタ付インターホン
- 防犯カメラ
- 宅配BOX
- ディンプルキー
- セキュリティ会社加入済
- インターネット利用料無料
- BSアンテナ
- CSアンテナ
- インターネット使い放題
- ハイグレード
- 食器洗乾燥機
備考 現況優先! 高層階! 分譲賃貸! ハイグレード! ※内覧ご希望の際は事前のご予約お願い致します! 学区色がついているアイコンをクリックすると、本物件までの道順を見ることができます。
主な周辺施設色がついているアイコンをクリックすると、本物件までの道順を見ることができます。
-
ホームページはこちら
福岡県知事 (1) 第20256号
(株)ヒットホーム 【WEB面談可】〒802-0077
福岡県北九州市小倉北区馬借1丁目11-6
ヒット馬借テラス 1FTEL:093-521-1023
FAX:093-521-1114
営業時間:9:00~18:00
定休日:毎週 日曜・祝日
- 加入団体
- (公社)全日本不動産協会
- 保証協会
- (公社)不動産保証協会
※連合隊は物件情報の精度向上に努めています:「物件情報に誤りがある」「成約済みである」などお気付きの点がございましたらこちらよりご連絡ください。
写真枚数:14枚












北九州の不動産の事ならヒットホームにお任せください!
賃貸・貸テナント・各種売買物件・収益物件売買まで幅広く取り扱っております!各分野に精通したスタッフが親切と誠実さを持って御希望に沿った物件を、お探しします!是非お気軽にご連絡ください!