この物件へのお問合せはこちら
011-532-0919
ロータリー20ビル
種別
賃料
坪単価約6,600円/坪
仲介手数料概算12万5,400円
住所 北海道札幌市中央区南二条西20丁目2-3
交通 駅 徒歩6分(約430m)
学区 北海道理容美容専門学校 約52m(徒歩1分) / 北海道歯科衛生士専門学校 約221m(徒歩3分)
専有面積 62.81m² 【19.00坪】
札幌市営地下鉄東西線「西18丁目」駅から徒歩6分と、アクセス便利な立地にある「ロータリー20ビル」のご紹介です。新しいビジネスの拠点をお探しの方にぴったりの、広々とした貸事務所・貸店舗(区分)物件です。専有面積は62.81m²とゆとりがあり、教育・スクールや事務所利用に特におすすめです。平成16年10月と平成17年5月に全面改修が施されており、清潔感あふれる快適な空間で気持ち良くお仕事に集中していただけます。エレベーターや灯油暖房、照明器具も完備されているので、スムーズに新生活をスタートできるのが嬉しいポイント。トイレや給湯室は共用となりますが、その分、この広さと駅徒歩6分という利便性の高い立地で、コストを抑えながら理想のビジネス空間を実現できます。店舗利用もご相談可能ですので、ぜひ一度ご検討ください。皆様の新しい挑戦を応援する、最適な物件です。
建物について
構造 鉄筋コンクリート(RC)造 7階建 駐車場
築年月 築53年 (1973年01月) 部屋番号 2階 B
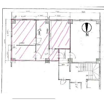
間取り
設備・特徴 エレベーター 照明器具付 灯油暖房 備考 平成16年10月及び平成17年5月全面改修済み、トイレ・給湯室共用、店舗可(業種都度確認) おすすめ出店業種:教育・スクール、事務所 出店不可業種:飲食全般
必要な費用など
敷金 34万2,000円 共益費
礼金 その他費用1
保証金 その他費用2
管理費 2万900円
その他
契約期間 2年間 物件no.

4660

取引態様 仲介 更新年月日 2026年03月13日
入居予定 2026年4月下旬 広告有効期限 2026年04月12日(次回更新予定日)
この物件へのお問合せはこちら
ロータリー20ビル
北海道札幌市中央区南二条西20丁目2-3
(株)クイック テナント事業部
〒064-0808 北海道札幌市中央区南八条西11丁目3-5サッポロMビル 1F
011-532-0919

北海道知事 石狩(6) 第6492号
〒064-0808 北海道札幌市中央区南8条西11丁目3-5 サッポロMビル 1F
お問合せ、お待ちしております!
電話でのお問合せ