この物件へのお問合せはこちら
011-532-0919
オフィス大通
種別 2台以上駐車可能
賃料
坪単価約1万円/坪
仲介手数料概算7万7,000円
住所 北海道札幌市中央区大通東3丁目4-1
交通 駅 徒歩2分(約145m) / 駅 徒歩8分(約638m)
学区
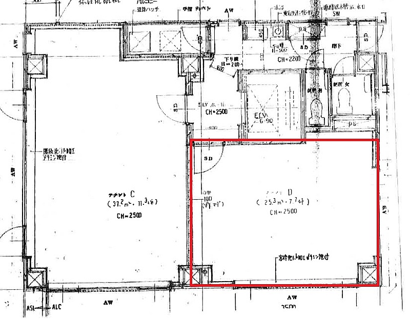
専有面積 25.46m² 【7.70坪】
札幌市中央区大通東に、新しいビジネスの拠点にふさわしいオフィス「オフィス大通」をご紹介いたします。札幌市営地下鉄東西線「バスセンター前」駅からなんと徒歩2分という、大変便利な駅近立地が魅力です。さらに、複数路線が利用できる「大通」駅も徒歩圏内で、お客様や社員様の通勤にも大変便利な立地です。専有面積25.46㎡のこちらのオフィスは、南向きで明るく、快適な空間でお仕事に集中していただけます。エアコンや照明器具が完備されており、入居後すぐに快適にお仕事を開始できるのが嬉しいポイント。24時間セキュリティシステムやエレベーター、共用部には男女別のトイレも完備されており、安心と利便性を兼ね備えた、働きやすい環境です。月額27,500円で立体駐車場もご利用いただけますので、お車での通勤にも便利です。周辺にはコンビニやドラッグストアもあり、ビジネスをサポートする環境が整っています。ぜひこの機会に、「オフィス大通」で新しいビジネスの可能性を広げてみませんか?
建物について
構造 鉄骨造 10階建 駐車場 立体駐車場 (2万7,500円)
築年月 築33年 (1992年11月) 部屋番号 8階 802
間取り
設備・特徴 複数路線利用可 エレベーター 照明器具付 エアコン付 個別空調 24時間セキュリティー 男女別トイレ(共用部) 備考 ※保証会社必須※冬期間1月~3月除雪代 月/3,300円(税込み) 南向き
必要な費用など
敷金 42万円 共益費
礼金 その他費用1 警備料(月額):4,400円
保証金 その他費用2
管理費 1万8,480円
その他
契約期間 2年間 物件no.
取引態様 仲介 更新年月日 2026年02月09日
入居予定 2026年4月下旬 広告有効期限 2026年03月11日(次回更新予定日)
この物件へのお問合せはこちら
オフィス大通
北海道札幌市中央区大通東3丁目4-1
(株)クイック テナント事業部
〒064-0808 北海道札幌市中央区南八条西11丁目3-5サッポロMビル 1F
011-532-0919

北海道知事 石狩(6) 第6492号
〒064-0808 北海道札幌市中央区南8条西11丁目3-5 サッポロMビル 1F
お問合せ、お待ちしております!
電話でのお問合せ