この物件へのお問合せはこちら
011-532-0919
白央ビル
種別 2台以上駐車可能
賃料
坪単価約5,500円/坪
仲介手数料概算52万2,500円
住所 北海道札幌市白石区中央一条7丁目10-23
交通 駅 徒歩8分(約623m)
学区
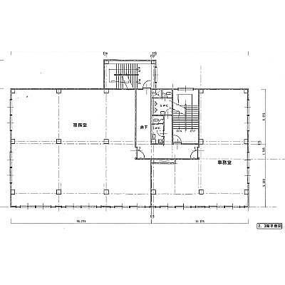
専有面積 314.05m² 【95.00坪】
札幌市白石区、環状通面オフィスビル!地下鉄東西線「白石」駅から徒歩8分。広々とした専有面積314.05㎡(約95坪)は、ゆとりのあるワンフロアーオフィス。エアコンやガス暖房、照明器具も完備されており、入居後すぐに快適な環境で業務を開始できるのが嬉しいポイントです。駐車場は10台分ご用意があり、お車での通勤や来客にも大変便利です(月額11,000円、冬期間除雪負担金あり)。周辺には郵便局や病院、飲食店も揃っており、ビジネスライフをサポートする環境が整っています。貴社の成長を力強く支える「白央ビル」で、新たなスタートを切りませんか。
建物について
構造 鉄筋コンクリート(RC)造 3階建 駐車場 冬期間除雪負担金有り (1万1,000円)
築年月 築50年 (1975年07月) 部屋番号 3階
間取り
設備・特徴 幹線道路沿い 照明器具付 給排水設備 ガス設備 ガス暖房 エアコン付 備考 保証会社必須(別途費用有り)、駐車場台数都度確認、ワンフロアー(62坪分割可)
必要な費用など
敷金 142万5,000円 共益費
礼金 その他費用1
保証金 その他費用2
管理費
その他
契約期間 2年間 物件no.

4146

取引態様 仲介 更新年月日 2026年01月19日
入居予定 即時 広告有効期限 2026年02月18日(次回更新予定日)
この物件へのお問合せはこちら
白央ビル
北海道札幌市白石区中央一条7丁目10-23
(株)クイック テナント事業部
〒064-0808 北海道札幌市中央区南八条西11丁目3-5サッポロMビル 1F
011-532-0919

北海道知事 石狩(6) 第6492号
〒064-0808 北海道札幌市中央区南8条西11丁目3-5 サッポロMビル 1F
お問合せ、お待ちしております!
電話でのお問合せ