この物件へのお問合せはこちら
011-532-0919
祐興ビル303号室
種別
賃料
坪単価約6,274円/坪
仲介手数料概算4万9,500円
住所 北海道札幌市中央区南一条西28丁目1-6
交通
学区
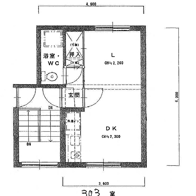
専有面積 26.1m² 【7.89坪】
札幌市中央区南1条西に貸店舗物件が登場!駅前立地でアクセス良好な祐興ビル303号室のご紹介です。マルヤマクラスまで徒歩3分、マックスバリュまで徒歩2分と、お買い物やランチにも便利な環境。銀行も近く、ビジネスをサポートする施設が揃います。広さ26.1㎡の空間は、美容系の店舗や事務所利用にぴったり。照明器具と給排水設備が整い、すぐにでも事業を始めやすい環境です。月額賃料49,500円(税込)、管理費2,750円と、初期投資を抑えたい方にも魅力的な価格。RC造の建物で安心です。お問い合わせをお待ちしております!
建物について
構造 鉄筋コンクリート(RC)造 4階建 駐車場
築年月 築52年 (1973年08月) 部屋番号 3階 303
間取り
設備・特徴 幹線道路沿い 駅前立地 照明器具付 給排水設備 備考 ※保証会社必須※火災保険加入必須 ※賃料等は消費税込み おすすめ出店業種:美容・健康・介護、事務所 出店不可業種:飲食全般
必要な費用など
敷金 9万円 共益費
礼金 その他費用1
保証金 その他費用2 水周り消毒料(一時金):1万5,000円
管理費 2,750円
その他
契約期間 2年間 物件no.

4636

取引態様 仲介 更新年月日 2025年12月15日
入居予定 即時 広告有効期限 2026年01月14日(次回更新予定日)
この物件へのお問合せはこちら
祐興ビル303号室
北海道札幌市中央区南一条西28丁目1-6
(株)クイック テナント事業部
〒064-0808 北海道札幌市中央区南八条西11丁目3-5サッポロMビル 1F
011-532-0919

北海道知事 石狩(6) 第6492号
〒064-0808 北海道札幌市中央区南8条西11丁目3-5 サッポロMビル 1F
お問合せ、お待ちしております!
電話でのお問合せ