この物件へのお問合せはこちら
011-532-0919
十三和ビル
種別
賃料
坪単価約4,487円/坪
仲介手数料概算5万5,000円
住所 北海道札幌市中央区南四条西13丁目1-35
交通 駅 徒歩10分(約776m) / 駅 徒歩5分(約338m)
学区
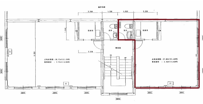
専有面積 40.53m² 【12.26坪】
札幌市中央区、ビジネスの拠点にふさわしい貸事務所!札幌市電山鼻線「西15丁目」駅まで徒歩5分、地下鉄東西線「西11丁目」駅も徒歩10分と、複数路線が利用できアクセス良好です。通勤や来客にも便利な立地が魅力。設備面では、エアコンと灯油暖房を完備し、一年を通して快適な室内環境を保てます。照明器具や専用給排水設備も設置済みで、初期費用を抑え、スムーズに業務をスタートすることができます!内覧のご希望など、お気軽にお問い合わせください!
建物について
構造 鉄骨造 4階建 駐車場 空き状況都度確認 (1万1,000円)
築年月 部屋番号 3階 南側
間取り
設備・特徴 照明器具付 給排水設備 エアコン付 灯油暖房 備考 ※賃料等は消費税込み ※保証会社必須※水道・共用電気は入居テナント按分にて請求※給排水専用
必要な費用など
敷金 10万円 共益費
礼金 その他費用1
保証金 その他費用2
管理費
その他
契約期間 3年間 物件no.
取引態様 仲介 更新年月日 2026年01月05日
入居予定 即時 広告有効期限 2026年02月04日(次回更新予定日)
この物件へのお問合せはこちら
十三和ビル
北海道札幌市中央区南四条西13丁目1-35
(株)クイック テナント事業部
〒064-0808 北海道札幌市中央区南八条西11丁目3-5サッポロMビル 1F
011-532-0919

北海道知事 石狩(6) 第6492号
〒064-0808 北海道札幌市中央区南8条西11丁目3-5 サッポロMビル 1F
お問合せ、お待ちしております!
電話でのお問合せ