この物件へのお問合せはこちら
011-532-0919
広井ビル
種別
賃料
坪単価約7,700円/坪
仲介手数料概算18万1,027円
住所 北海道札幌市中央区北一条西7丁目1
交通 駅 徒歩6分(約476m) / 駅 徒歩9分(約664m) / 駅 徒歩11分(約865m)
学区
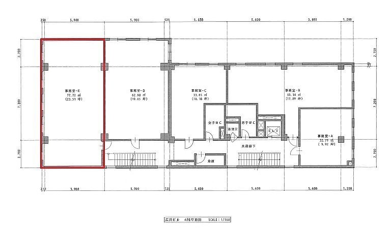
専有面積 77.72m² 【23.51坪】
札幌市中央区、北1条通に面した「広井ビル」より、新しいビジネスの拠点にぴったりの貸事務所のご紹介です。広々とした77.72㎡の空間は、角部屋ならではの大きな窓から光が差し込み、明るく開放的なオフィス環境を実現します。セントラル空調に加え、個別エアコンも完備しており、24時間快適な温度で作業に集中していただけます。24時間セキュリティーやエレベーター、男女別トイレ(共用部)も整っており、安心と利便性を兼ね備えた、管理の行き届いたオフィスビルです。周辺にはコンビニや飲食店、郵便局、銀行が徒歩圏内に充実しており、日常業務の合間にも便利にご利用いただけます。札幌市電山鼻線「西8丁目駅」へ徒歩6分、地下鉄「大通駅」へも徒歩11分と、複数路線が利用できるため、通勤や来客にも大変便利です。新しいオフィスで、快適なビジネスライフをスタートしませんか?
建物について
構造 鉄筋コンクリート(RC)造 5階建(地下1階) 駐車場
築年月 築62年 (1963年07月) 部屋番号 4階 E
間取り
設備・特徴 幹線道路沿い エレベーター 照明器具付 エアコン付 24時間セキュリティー 男女別トイレ(共用部) セントラル空調 男女別トイレ 複数路線利用可 備考 ※賃料等には別途消費税が加算されます。※毎年10月~5月まで集中暖房費が固定でかかります。月37,616円※個別でエアコンも有り24時間冷暖房利用できます。
必要な費用など
敷金 98万7,420円 共益費
礼金 その他費用1
保証金 その他費用2
管理費 5万1,722円
その他
契約期間 2年間 物件no.

4609

取引態様 仲介 更新年月日 2026年02月12日
入居予定 即時 広告有効期限 2026年03月14日(次回更新予定日)
この物件へのお問合せはこちら
広井ビル
北海道札幌市中央区北一条西7丁目1
(株)クイック テナント事業部
〒064-0808 北海道札幌市中央区南八条西11丁目3-5サッポロMビル 1F
011-532-0919

北海道知事 石狩(6) 第6492号
〒064-0808 北海道札幌市中央区南8条西11丁目3-5 サッポロMビル 1F
お問合せ、お待ちしております!
電話でのお問合せ