フジヒロ北5条ビル
ここに注目!国道沿い大型路面店舗。駐車場2台契約可。
この物件の契約期間は 5年間です。
定期借家物件は、賃貸借契約期間満了後、原則として契約の更新ができない物件です。再契約の可否については不動産会社にお問合せください。
| 賃料・費用 |
33万円
(+管理費等 なし)
坪単価:約1.5万円/坪
敷90万円礼なし仲33万円
保証金:なし/敷引・償却金:なし
|
|---|---|
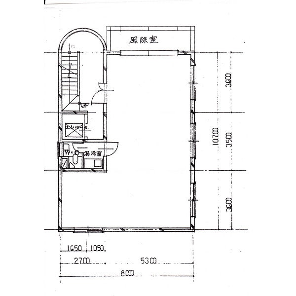
| 専有面積 | 71.27m² (21.55坪) |
| 住所 | 北海道札幌市中央区北五条西25丁目4-18 |
| 交通 | 西28丁目駅(徒歩4分)|二十四軒駅(徒歩14分)|円山公園駅(徒歩14分)|西18丁目駅(徒歩22分)|桑園駅(徒歩25分)道順を見る |
| 階/階建 | 路面 / 4階建(地下1階) |
| 築年月 | 築34年(1991年8月) |
| 駐車場 |
あり (1万6,500円/台) 駐車可能台数:2台
|
空室確認、見学、詳細を知りたい方はこちら!
お電話の際は「連合隊の物件」とお伝えください。
新着 情報掲載期限:あと30日(更新日 2026/3/18)
- 物件写真・概要
- 周辺地図
-
空室確認、見学、詳細を知りたい方はこちら!
おすすめポイント
- 即入居可
- 路面店
- 駅徒歩5分以内
- 複数路線利用可
- 幹線道路沿い
- 駐車2台以上可
- 出店するなら…この業種がおすすめ!
- 飲食全般(重飲食含む)

- 喫茶・カフェ(軽飲食)

- バー・クラブ・スナック

- 小売・物販

- 美容・健康・介護

- 医療

- 教育・スクール

- 事務所

- アミューズメント

※出店不可の業種:重飲食(軽飲食は相談可)
交通色がついているアイコンをクリックすると、本物件までの道順を見ることができます。
- 西28丁目駅札幌市営地下鉄東西線徒歩4分
- 二十四軒駅札幌市営地下鉄東西線徒歩14分(約1.1km)
- 円山公園駅札幌市営地下鉄東西線徒歩14分(約1.1km)
- 西18丁目駅札幌市営地下鉄東西線徒歩22分(約1.7km)
- 桑園駅JR札沼線、JR函館本線徒歩25分(約2km)
物件概要
所在階/建物の階建 1階(1階) / 地上4階 地下1階建 主要採光面 北東 構造 鉄筋コンクリート(RC)造 間取り その他1階:その他 契約期間 定期借家(5年間) 更新料/更新手数料 なし / なし 権利金 なし 住宅保険 お問合せください 出店推奨業種 喫茶・カフェ(軽飲食)、小売・物販、美容・健康・介護 出店不可業種 重飲食(軽飲食は相談可) 用途地域 - 近隣商業地域
引渡し 即時 管理人 巡回 取引態様 仲介 物件No 設備・特徴 - 複数路線利用可
- 幹線道路沿い
- エレベーター
- ガス設備
- 給排水設備
- 24時間利用可
- 路面店
備考 ◆賃料、共益費は消費税込みです。 ◆定期借家契約(再契約可) ◆保証会社利用必須 ◆家賃発生相談 ◆大型物件 ◆個別給湯・貸室内トイレあり ◆事務所・店舗 ◆飲食店 ◆路面店舗 ◆駐車2台可 ◆内覧可能 ◆サービス ◆美容室 ◆各種サロン 主な周辺施設色がついているアイコンをクリックすると、本物件までの道順を見ることができます。
-
ホームページはこちら
北海道知事 石狩(7) 第6109号
(株)ユニバーサルエステート テナント事業部
※連合隊は物件情報の精度向上に努めています:「物件情報に誤りがある」「成約済みである」などお気付きの点がございましたらこちらよりご連絡ください。
写真枚数:6枚