円山公園ハウス
ここに注目!円山公園入口すぐそばの1階路面店舗です。付近には商業施設が充実し、人気フレンチレストランやカフェも集まる市内屈指の人気エリア。駐車場4台契約可能です。業種等、お問い合わせください。
| 賃料・費用 |
55万円
(+管理費等 -円)
坪単価:約2.5万円/坪
敷300万円仲55万円
|
|---|---|
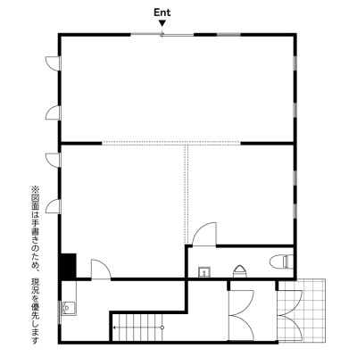
| 専有面積 | 73.1m² (22.11坪) |
| 住所 | 北海道札幌市中央区南一条西28丁目3-7 |
| 交通 | 円山公園駅(徒歩3分)|西28丁目駅(徒歩9分)|西18丁目駅(徒歩14分)道順を見る |
| 階/階建 | 路面 / 4階建 |
| 築年月 | 築25年(2000年12月) |
| 駐車場 |
あり (2万2,000円/台) 駐車可能台数:4台
|
空室確認、見学、詳細を知りたい方はこちら!
お電話の際は「連合隊の物件」とお伝えください。
新着 情報掲載期限:あと29日(更新日 2026/3/4)
- 物件写真・概要
- 周辺地図
-
空室確認、見学、詳細を知りたい方はこちら!
おすすめポイント
- 路面店
- 駅徒歩3分以内
- 駅前立地
- 駐車2台以上可
- 出店するなら…この業種がおすすめ!
- 飲食全般(重飲食含む)

- 喫茶・カフェ(軽飲食)

- バー・クラブ・スナック

- 小売・物販

- 美容・健康・介護

- 医療

- 教育・スクール

- 事務所

- アミューズメント

交通色がついているアイコンをクリックすると、本物件までの道順を見ることができます。
物件概要
所在階/建物の階建 1階 / 地上4階建 主要採光面 構造 鉄筋コンクリート(RC)造 間取り 契約期間 権利金 住宅保険 お問合せください 出店推奨業種 喫茶・カフェ(軽飲食)、小売・物販、事務所 出店不可業種 用途地域 - 第1種中高層住居専用地域
引渡し 相談 管理人 取引態様 仲介 物件No 設備・特徴 - 駅前立地
- 給排水設備
- 路面店
- 前面ガラス張り
- テナント
備考 ◆保証会社利用必須 ◆駐車4台契約可 ◆事務所・店舗 ◆路面店舗 ◆飲食店 主な周辺施設色がついているアイコンをクリックすると、本物件までの道順を見ることができます。
-
ホームページはこちら
北海道知事 石狩(7) 第6109号
(株)ユニバーサルエステート テナント事業部
※連合隊は物件情報の精度向上に努めています:「物件情報に誤りがある」「成約済みである」などお気付きの点がございましたらこちらよりご連絡ください。
写真枚数:6枚