ニュー札幌ビル
ここに注目!坪8,000円の札幌駅南口エリア。築年数は経過していますが綺麗に保たれているビルです。
この物件の契約期間は 3年間です。
定期借家物件は、賃貸借契約期間満了後、原則として契約の更新ができない物件です。再契約の可否については不動産会社にお問合せください。
| 賃料・費用 |
7万8,056円
(+管理費等 2万9,271円)
坪単価:約8,800円/坪
敷53万2,200円礼なし仲7万8,056円
敷引・償却金:なし
|
|---|---|
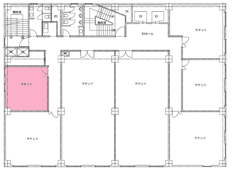
| 専有面積 | 29.33m² (8.87坪) |
| 住所 | 北海道札幌市中央区北四条西4丁目1-1 |
| 交通 | 大通駅(徒歩10分)|札幌駅(徒歩1分)|さっぽろ駅(徒歩1分)|北12条駅(徒歩15分)|バスセンター前駅(徒歩17分)道順を見る |
| 階/階建 | 4階 / 9階建(地下1階) |
| 築年月 | 築64年(1961年10月) |
| 駐車場 |
近隣月極駐車場 (4万4,000円/台) 駐車可能台数:1台
|
空室確認、見学、詳細を知りたい方はこちら!
お電話の際は「連合隊の物件」とお伝えください。
情報掲載期限:あと22日(更新日 2025/12/24)
- 物件写真・概要
- 周辺地図
-
空室確認、見学、詳細を知りたい方はこちら!
おすすめポイント
- 駅徒歩1分以内
- 複数路線利用可
- 駅前立地
- 商店街に面す
- 幹線道路沿い
- 光ファイバー
- 24時間セキュリティー
- 出店するなら…この業種がおすすめ!
- 飲食全般(重飲食含む)

- 喫茶・カフェ(軽飲食)

- バー・クラブ・スナック

- 小売・物販

- 美容・健康・介護

- 医療

- 教育・スクール

- 事務所

- アミューズメント

※出店不可の業種:飲食全般、美容・理容
交通色がついているアイコンをクリックすると、本物件までの道順を見ることができます。
- 大通駅札幌市営地下鉄南北線、札幌市営地下鉄東豊線、札幌市営地下鉄東西線徒歩10分
- 札幌駅札幌市営地下鉄南北線、札幌市営地下鉄東豊線、JR札沼線、JR千歳線、JR函館本線駅近!徒歩1分
- さっぽろ駅札幌市営地下鉄南北線、札幌市営地下鉄東豊線、JR札沼線、JR千歳線、JR函館本線駅近!徒歩1分
- 北12条駅札幌市営地下鉄南北線徒歩15分(約1.2km)
- バスセンター前駅札幌市営地下鉄東西線徒歩17分(約1.4km)
物件概要
所在階/建物の階建 4階(1) / 地上9階 地下1階建 主要採光面 西 構造 鉄筋コンクリート(RC)造 間取り その他4階:その他 契約期間 定期借家(3年間) 更新料/更新手数料 なし 権利金 なし 住宅保険 出店推奨業種 事務所 出店不可業種 飲食全般、美容・理容 用途地域 - 商業地域
引渡し 相談 管理人 日勤 取引態様 仲介 物件No 設備・特徴 - 複数路線利用可
- 駅前立地
- 商店街に面す
- 幹線道路沿い
- エレベーター
- 照明器具付
- エアコン付
- 個別空調
- 24時間セキュリティー
- ブロードバンド回線(光ファイバー等の高速インターネット)
- 深夜営業相談可
- 男女別トイレ
備考 ◆保証会社利用必須 ◆定期借家契約(再契約可) ◆保証会社利用可 ◆家賃発生相談 ◆賃料、共益費は消費税込みです。 ◆各階男女別トイレ・給湯室あり ◆機械警備あり ◆事務所 ◆インテナント 主な周辺施設色がついているアイコンをクリックすると、本物件までの道順を見ることができます。
-
ホームページはこちら
北海道知事 石狩(7) 第6109号
(株)ユニバーサルエステート テナント事業部
※連合隊は物件情報の精度向上に努めています:「物件情報に誤りがある」「成約済みである」などお気付きの点がございましたらこちらよりご連絡ください。
写真枚数:19枚