EASTAR VILLAGE
ここに注目!飲食店OKな新築テナントビル。すすきの東エリア、交通量の多い国道36号線沿いです。スケルトン、トイレは共用でレイアウトも自由に。
| 賃料・費用 |
14万5,200円
(+管理費等 3万250円)
坪単価:約2.6万円/坪
敷26万4,000円礼26万4,000円仲14万5,200円
保証金:なし/敷引・償却金:なし
|
|---|---|
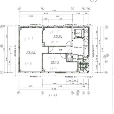
| 専有面積 | 18.76m² (5.67坪) |
| 住所 | 北海道札幌市中央区南五条東2丁目 |
| 交通 | 豊水すすきの駅(徒歩5分)|すすきの駅(徒歩9分)|バスセンター前駅(徒歩9分)|大通駅(徒歩12分)|狸小路駅(徒歩11分)道順を見る |
| 階/階建 | 2階 / 5階建 |
| 築年月 | 建築中(2026年5月完成予定) |
| 駐車場 |
近隣月極駐車場 (1万8,000円/台) 駐車可能台数:1台
|
空室確認、見学、詳細を知りたい方はこちら!
お電話の際は「連合隊の物件」とお伝えください。
情報掲載期限:あと27日(更新日 2025/12/18)
- 物件写真・概要
- 周辺地図
-
空室確認、見学、詳細を知りたい方はこちら!
おすすめポイント
- 駅徒歩5分以内
- 複数路線利用可
- スケルトン
- デザイナーズ
- 出店するなら…この業種がおすすめ!
- 飲食全般(重飲食含む)

- 喫茶・カフェ(軽飲食)

- バー・クラブ・スナック

- 小売・物販

- 美容・健康・介護

- 医療

- 教育・スクール

- 事務所

- アミューズメント

※出店不可の業種:アミューズメント
交通色がついているアイコンをクリックすると、本物件までの道順を見ることができます。
- 豊水すすきの駅札幌市営地下鉄東豊線徒歩5分(約378m)
- すすきの駅札幌市営地下鉄南北線、札幌市電山鼻線徒歩9分(約649m)
- バスセンター前駅札幌市営地下鉄東西線徒歩9分(約709m)
- 大通駅札幌市営地下鉄南北線、札幌市営地下鉄東豊線、札幌市営地下鉄東西線徒歩12分(約946m)
- 狸小路駅札幌市電山鼻線徒歩11分(約816m)
物件概要
所在階/建物の階建 2階(2階C) / 地上5階建 主要採光面 北 構造 鉄骨鉄筋コンクリート(SRC)造 間取り その他2階:その他 契約期間 3年間 更新料/更新手数料 なし 権利金 なし 住宅保険 出店推奨業種 飲食全般(重飲食含む)、喫茶・カフェ(軽飲食)、美容・健康・介護 出店不可業種 アミューズメント 用途地域 - 商業地域
その他費用 毎月の費用 - 24時間管理費:2,200円
- 町内会費:500円
引渡し 2026年6月初旬 管理人 巡回 取引態様 仲介 物件No 設備・特徴 - 複数路線利用可
- エレベーター
- デザイナーズ
- 24時間利用可
- 深夜営業相談可
- スケルトン
備考 ◆サービス ◆保証会社利用必須 ◆家賃発生相談 ◆賃料、共益費は消費税込みです。 ◆家賃発生相談 ◆各階トイレ ◆事務所・店舗 ◆インテナント ◆飲食店可◆スケルトン◆各階防犯カメラ 主な周辺施設色がついているアイコンをクリックすると、本物件までの道順を見ることができます。
-
ホームページはこちら
北海道知事 石狩(7) 第6109号
(株)ユニバーサルエステート テナント事業部
※連合隊は物件情報の精度向上に努めています:「物件情報に誤りがある」「成約済みである」などお気付きの点がございましたらこちらよりご連絡ください。
写真枚数:8枚