カワムラビル
ここに注目!円山公園駅まで3分、裏参道横の南西角地、エレベーター付き最上階のオーナーズルームです。約7坪の南向きルーフバルコニー魅力。住居、SOHO、各種事業用に対応しております。
| 賃料・費用 |
33万円
(+管理費等 2万2,000円)
坪単価:約1.2万円/坪
敷90万円仲33万円
保証金:なし/敷引・償却金:なし
|
|---|---|
| 専有面積 | 88.39m² (26.73坪) |
| 住所 | 北海道札幌市中央区南二条西24丁目2-17 |
| 交通 | 円山公園駅(徒歩3分)|西18丁目駅(徒歩11分)|西28丁目駅(徒歩15分)|西15丁目駅(徒歩18分)|西線6条駅(徒歩18分)道順を見る |
| 階/階建 | 3階 / 3階建 |
| 築年月 | 築7年(2018年10月) |
| 駐車場 |
近隣月極駐車場 (2万2,000円/台) 駐車可能台数:1台
|
空室確認、見学、詳細を知りたい方はこちら!
お電話の際は「連合隊の物件」とお伝えください。
情報掲載期限:あと24日(更新日 2025/12/9)
- 物件写真・概要
- 周辺地図
-
空室確認、見学、詳細を知りたい方はこちら!
おすすめポイント
- 即入居可
- 駅徒歩3分以内
- 複数路線利用可
- 駅前立地
- 商店街に面す
- 幹線道路沿い
- エアコン付
- 光ファイバー
- 出店するなら…この業種がおすすめ!
- 飲食全般(重飲食含む)

- 喫茶・カフェ(軽飲食)

- バー・クラブ・スナック

- 小売・物販

- 美容・健康・介護

- 医療

- 教育・スクール

- 事務所

- アミューズメント

※出店不可の業種:飲食全般
交通色がついているアイコンをクリックすると、本物件までの道順を見ることができます。
- 円山公園駅札幌市営地下鉄東西線駅近!徒歩3分
- 西18丁目駅札幌市営地下鉄東西線徒歩11分
- 西28丁目駅札幌市営地下鉄東西線徒歩15分(約1.2km)
- 西15丁目駅札幌市電山鼻線徒歩18分(約1.4km)
- 西線6条駅札幌市電山鼻線徒歩18分(約1.5km)
物件概要
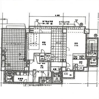
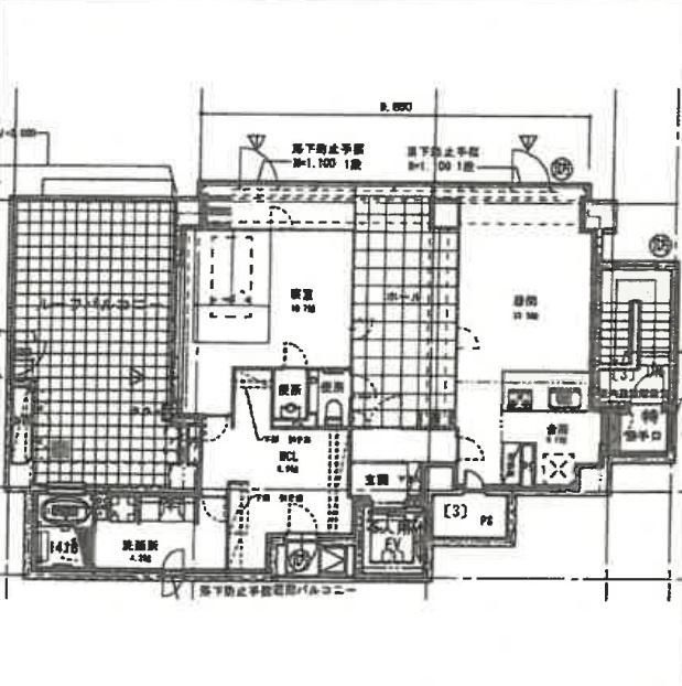
所在階/建物の階建 3階(3F) / 地上3階建 主要採光面 南西 構造 鉄筋コンクリート(RC)造 間取り 1LDK3階:LDK29.6帖 洋室10帖 バルコニー あり(23.66m²)- ウッドデッキ・テラス
- ルーフバルコニー
- バルコニー南向き
契約期間 3年間 更新料/更新手数料 なし / なし 権利金 なし 住宅保険 出店推奨業種 美容・健康・介護、教育・スクール、事務所 出店不可業種 飲食全般 用途地域 - 準住居地域
引渡し 即時 管理人 巡回 取引態様 仲介 物件No 設備・特徴 - 複数路線利用可
- 駅前立地
- 商店街に面す
- 幹線道路沿い
- エレベーター
- 給排水設備
- ガス設備
- 照明器具付
- エアコン付
- 個別空調
- ブロードバンド回線(光ファイバー等の高速インターネット)
- 24時間利用可
備考 ◆福祉 ◆サービス ◆保証会社利用必須 ◆保証会社利用可 ◆家賃発生相談 ◆賃料、共益費は消費税込みです。 ◆大型物件 ◆個別給湯・貸室内トイレあり ◆事務所・店舗 ◆マンションタイプ ◆インテナント ◆内覧可能 ◆都市ガス ◆最上階◆ワンフロア◆IHクッキングヒーター◆ルーフバルコニー 主な周辺施設色がついているアイコンをクリックすると、本物件までの道順を見ることができます。
-
ホームページはこちら
北海道知事 石狩(7) 第6109号
(株)ユニバーサルエステート テナント事業部
※連合隊は物件情報の精度向上に努めています:「物件情報に誤りがある」「成約済みである」などお気付きの点がございましたらこちらよりご連絡ください。
写真枚数:14枚