COREX円山
ここに注目!円山裏参道に位置する、洗練されたデザイナーズ路面店舗「COREX円山」のご紹介です。 地下鉄東西線「西18丁目」駅・「円山公園」駅から**徒歩5分**、「西15丁目」駅からも**徒歩8分**と、複数路線利用可能な好立地が魅力。話題の裏参道沿い、角地に建つ全面ガラス張りの外観は、高い視認性で貴社の事業を印象付け、集客力を高めます。 約97.9㎡の広々とした空間は、物販・美容・健康関連から飲食まで、幅広い業種に対応可能。 エアコン、個別空調、給排水設備が完備され、24時間利用や深夜営業も相談可能ですので、多様なビジネススタイルをサポートします。 この機会に、人気の円山エリアで理想のビジネス拠点を見つけませんか?まずはお気軽にお問い合わせください。
| 賃料・費用 |
53万7,000円
(+管理費等 3万3,000円)
坪単価:約1.8万円/坪
敷195万2,728円礼なし仲53万7,000円
保証金:なし/敷引・償却金:なし
|
|---|---|
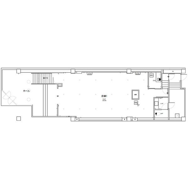
| 専有面積 | 97.9m² (29.61坪) |
| 住所 | 北海道札幌市中央区南一条西22丁目2-1 |
| 交通 | 西11丁目駅(徒歩18分)|西28丁目駅(徒歩17分)|西15丁目駅(徒歩8分)|西18丁目駅(徒歩5分)|円山公園駅(徒歩5分)道順を見る |
| 階/階建 | 路面 / 3階建 |
| 築年月 | 築36年(1989年8月) |
| 駐車場 |
近隣月極駐車場 (1万9,800円/台) 駐車可能台数:1台
|
空室確認、見学、詳細を知りたい方はこちら!
お電話の際は「連合隊の物件」とお伝えください。
情報掲載期限:あと29日(更新日 2025/12/18)
- 物件写真・概要
- 周辺地図
-
空室確認、見学、詳細を知りたい方はこちら!
おすすめポイント
- 即入居可
- 路面店
- 駅徒歩5分以内
- 複数路線利用可
- 商店街に面す
- デザイナーズ
- エアコン付
- 出店するなら…この業種がおすすめ!
- 飲食全般(重飲食含む)

- 喫茶・カフェ(軽飲食)

- バー・クラブ・スナック

- 小売・物販

- 美容・健康・介護

- 医療

- 教育・スクール

- 事務所

- アミューズメント

交通色がついているアイコンをクリックすると、本物件までの道順を見ることができます。
- 西11丁目駅札幌市電山鼻線、札幌市営地下鉄東西線徒歩18分(約1.5km)
- 西28丁目駅札幌市営地下鉄東西線徒歩17分(約1.4km)
- 西15丁目駅札幌市電山鼻線徒歩8分
- 西18丁目駅札幌市営地下鉄東西線徒歩5分
- 円山公園駅札幌市営地下鉄東西線徒歩5分
物件概要
所在階/建物の階建 1階(1F) / 地上3階建 主要採光面 南 構造 鉄筋コンクリート(RC)造 間取り その他1階:その他 契約期間 2年間 更新料/更新手数料 なし / なし 権利金 なし 住宅保険 出店推奨業種 飲食全般(重飲食含む)、小売・物販、美容・健康・介護 出店不可業種 用途地域 - 近隣商業地域
その他費用 毎月の費用 - 24時間管理費:1,100円
引渡し 即時 管理人 巡回 取引態様 仲介 物件No 設備・特徴 - 複数路線利用可
- 商店街に面す
- デザイナーズ
- 給排水設備
- エアコン付
- 個別空調
- 24時間利用可
- 深夜営業相談可
- 路面店
- 前面ガラス張り
備考 ◆保証会社利用必須 ◆家賃発生相談 ◆賃料、共益費は消費税込みです。 ◆大型物件 ◆個別冷暖房 ◆個別給湯・貸室内トイレあり ◆路面店舗 ◆飲食店舗◆事務所・店舗 ◆電気 ◆プロパンガス◆物販 ◆ネイルサロン ◆鍼灸院 ◆スクール ◆美容室 ◆エステ ◆サービス ◆福祉 主な周辺施設色がついているアイコンをクリックすると、本物件までの道順を見ることができます。
-
ホームページはこちら
北海道知事 石狩(7) 第6109号
(株)ユニバーサルエステート テナント事業部
※連合隊は物件情報の精度向上に努めています:「物件情報に誤りがある」「成約済みである」などお気付きの点がございましたらこちらよりご連絡ください。
写真枚数:6枚