郵政福祉札幌第1ビル
ここに注目!大通市電通沿い角地の大型ビル地下飲食店街。とても視認性の良いビルです。地下飲食店街へは専用階段とエレベーターあり。飲食以外業態も入居可能です。
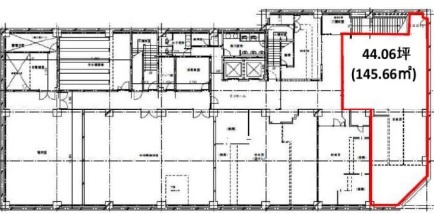
この物件の契約期間は 3年間です。
定期借家物件は、賃貸借契約期間満了後、原則として契約の更新ができない物件です。再契約の可否については不動産会社にお問合せください。
| 賃料・費用 |
60万5,825円
(+管理費等 14万5,398円)
坪単価:約1.4万円/坪
敷なし礼なし仲60万5,825円
保証金:なし(償却区分:年)/敷引・償却金:なし
|
|---|---|
| 専有面積 | 145.66m² (44.06坪) |
| 住所 | 北海道札幌市中央区南一条西5丁目20 |
| 交通 | 大通駅(徒歩3分)|西4丁目駅(徒歩2分)|すすきの駅(徒歩8分)|西11丁目駅(徒歩10分)|バスセンター前駅(徒歩7分)道順を見る |
| 階/階建 | 地下1階 / 8階建(地下1階) |
| 築年月 | 築42年(1983年10月) |
| 駐車場 |
あり 駐車可能台数:1台
|
空室確認、見学、詳細を知りたい方はこちら!
お電話の際は「連合隊の物件」とお伝えください。
情報掲載期限:あと28日(更新日 2025/12/16)
- 物件写真・概要
- 周辺地図
-
空室確認、見学、詳細を知りたい方はこちら!
おすすめポイント
- 即入居可
- 駅徒歩3分以内
- 複数路線利用可
- 駅前立地
- 商店街に面す
- 幹線道路沿い
- 駐車場あり
- 男女別トイレ
- エアコン付
- 敷・礼・保0円
- 出店するなら…この業種がおすすめ!
- 飲食全般(重飲食含む)

- 喫茶・カフェ(軽飲食)

- バー・クラブ・スナック

- 小売・物販

- 美容・健康・介護

- 医療

- 教育・スクール

- 事務所

- アミューズメント

※出店不可の業種:水商売、アミューズメント
交通色がついているアイコンをクリックすると、本物件までの道順を見ることができます。
- 大通駅札幌市営地下鉄南北線、札幌市営地下鉄東豊線、札幌市営地下鉄東西線駅近!徒歩3分
- 西4丁目駅札幌市電山鼻線駅近!徒歩2分
- すすきの駅札幌市営地下鉄南北線、札幌市電山鼻線徒歩8分
- 西11丁目駅札幌市電山鼻線、札幌市営地下鉄東西線徒歩10分
- バスセンター前駅札幌市営地下鉄東西線徒歩7分
物件概要
所在階/建物の階建 地下1階(南西角) / 地上8階 地下1階建 主要採光面 構造 鉄骨鉄筋コンクリート(SRC)造 間取り その他その他 契約期間 定期借家(3年間) 更新料/更新手数料 なし / なし 権利金 なし 住宅保険 出店推奨業種 飲食全般(重飲食含む)、喫茶・カフェ(軽飲食)、美容・健康・介護 出店不可業種 水商売、アミューズメント 用途地域 - 商業地域
引渡し 即時 管理人 日勤 取引態様 仲介 物件No 設備・特徴 - 複数路線利用可
- 駅前立地
- 商店街に面す
- 幹線道路沿い
- エレベーター
- エアコン付
- 24時間利用可
- 男女別トイレ
備考 ◆飲食店舗 ◆個別冷暖房 ◆各階男女別トイレ・給湯室あり ◆サービス ◆ネイルサロン ◆鍼灸院 ◆マッサージ ◆カイロプラクティック ◆スクール ◆美容室 ◆家賃発生相談◆2016年共用部リニューアル◆24時間出入可◆敷金相談(業態により)◆駐車場料金確認◆定期借家契約期間相談 主な周辺施設色がついているアイコンをクリックすると、本物件までの道順を見ることができます。
-
ホームページはこちら
北海道知事 石狩(7) 第6109号
(株)ユニバーサルエステート テナント事業部
※連合隊は物件情報の精度向上に努めています:「物件情報に誤りがある」「成約済みである」などお気付きの点がございましたらこちらよりご連絡ください。
写真枚数:18枚