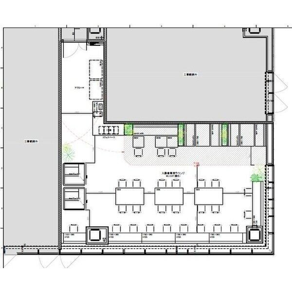
サザンクロス札幌 3階(ワンフロア)
ここに注目!耐震構造】 耐震構造 【エレベータ】 エレベータ有 2基
| 賃料・費用 |
327万4,194円
(+管理費等 -円)
坪単価:約2.3万円/坪
敷2,976万5,400円仲327万4,194円
|
|---|---|
| 専有面積 | 468.59m² (141.74坪) |
| 住所 | 北海道札幌市中央区南三条西3-11 |
| 交通 | 狸小路駅(徒歩3分)|すすきの駅(徒歩3分) |
| 階/階建 | 3階 / 11階建(地下1階) |
| 築年月 | 築1年(2025年1月) |
| 駐車場 |
あり (3万3,000円/台)
機械式地下駐車場 ※1階に荷捌きスペース有 |
空室確認、見学、詳細を知りたい方はこちら!
お電話の際は「連合隊の物件」とお伝えください。
情報掲載期限:あと19日(更新日 2026/4/18)
- 物件写真・概要
- 周辺地図
-
空室確認、見学、詳細を知りたい方はこちら!
おすすめポイント
- 即入居可
- 駅徒歩3分以内
- 幹線道路沿い
- 駐車場あり
- 出店するなら…この業種がおすすめ!
- 飲食全般(重飲食含む)

- 喫茶・カフェ(軽飲食)

- バー・クラブ・スナック

- 小売・物販

- 美容・健康・介護

- 医療

- 教育・スクール

- 事務所

- アミューズメント

※出店不可の業種:飲食全般
交通色がついているアイコンをクリックすると、本物件までの道順を見ることができます。
物件概要
所在階/建物の階建 3階(ワンフロア) / 地上11階 地下1階建 主要採光面 構造 鉄骨造 間取り 契約期間 権利金 住宅保険 出店推奨業種 事務所 出店不可業種 飲食全般 引渡し 即時 管理人 取引態様 仲介 物件No 設備・特徴 - 幹線道路沿い
- エレベーター
備考 主な周辺施設色がついているアイコンをクリックすると、本物件までの道順を見ることができます。
-
ホームページはこちら北海道知事 石狩(3) 第7905号
ハウスユー千歳店 (有)丸鍾- 加入団体
- (公社)北海道宅地建物取引業協会
- 保証協会
- (公社)全国宅地建物取引業保証協会
- 公正取引協議会
- 未加盟
※連合隊は物件情報の精度向上に努めています:「物件情報に誤りがある」「成約済みである」などお気付きの点がございましたらこちらよりご連絡ください。
写真枚数:17枚