レジディア大通西1405(14階部分)
ここに注目!防犯カメラ、オートロックシステムが有ります。 シャッター付きゴミ集積庫が有ります。 地下トランクルーム、宅配BOXなど設備も充実しています。 2021年共用部リニューアル実施し、ラグジュアリーなエントランス・廊下となっています。
| 賃料・費用 |
12万7,000円(+管理費等 7,000円)
敷12万7,000円(1ヶ月)礼12万7,000円(1ヶ月)仲13万9,700円
|
|---|---|
| 間取・専有 |
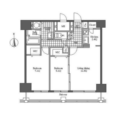
2LDK(63.95m²)
|
| 住所 | 北海道札幌市中央区大通西8-2-30 |
| 交通 | 西8丁目駅(徒歩5分)|大通駅(徒歩12分) |
| 築年月 | 築19年(2006年12月) |
| 駐車場 |
あり (2万6,400円/台) 駐車可能台数:7台
敷金税別1ケ月/立体駐車場(普通)3台、地下式駐車場(普通)2台・(大型)2台 |
空室確認、見学、詳細を知りたい方はこちら!
お電話の際は「連合隊の物件」とお伝えください。
情報掲載期限:あと13日(更新日 2025/11/29)
- 物件写真・概要
- 周辺地図
-
空室確認、見学、詳細を知りたい方はこちら!
おすすめポイント
- バス/トイレ別
- オートロック
- 2階以上
- 都市ガス
- 室内洗濯機置場
- 駐車2台以上可
- エアコン付
- 独立洗面台
- 追い焚き風呂
- ペット相談可
- デザイナーズ
- 敷金・礼金0円
- 近くて便利!徒歩5分以内にある施設
- 2分
2分- 2分
2分- 周辺施設を地図で確認
交通色がついているアイコンをクリックすると、本物件までの道順を見ることができます。
物件概要
所在階/建物の階建 14階(1405) / 地上15階 地下1階建 総戸数 103戸 主要採光面 東 構造 鉄筋コンクリート(RC)造 契約期間 更新料/更新手数料 6万3,500円(0.5ヶ月) 住宅保険 入居可能時期 相談(入居可能時期 2025年6月下旬) 管理人 取引態様 仲介 物件No 設備・特徴 - 納戸・トランクルーム
- オートロック
- 防犯カメラ
- 宅配BOX
備考 学区色がついているアイコンをクリックすると、本物件までの道順を見ることができます。
主な周辺施設色がついているアイコンをクリックすると、本物件までの道順を見ることができます。
-
ホームページはこちら北海道知事 石狩(3) 第7905号
ハウスユー千歳店 (有)丸鍾- 加入団体
- (公社)北海道宅地建物取引業協会
- 保証協会
- (公社)全国宅地建物取引業保証協会
- 公正取引協議会
- 未加盟
※連合隊は物件情報の精度向上に努めています:「物件情報に誤りがある」「成約済みである」などお気付きの点がございましたらこちらよりご連絡ください。
写真枚数:10枚