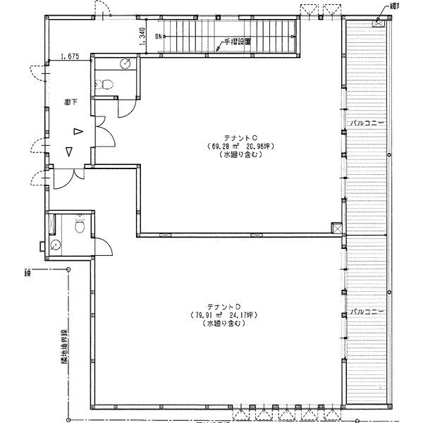
南22西11 A棟テナント2F-C(2階部分)
ここに注目!○ 角部屋 ○ 最上階 ○ 事務所利用可能 ○ 保証会社利用必須 ○ エアコン(冷暖房)
| 賃料・費用 |
22万9,900円
(+管理費等 3,300円)
敷62万7,000円礼なし仲22万9,900円
保証金:なし/敷引・償却金:なし
|
|---|---|
| 専有面積 | |
| 住所 | 北海道札幌市中央区南二十二条西11-1-16 |
| 交通 | 石山通駅(徒歩3分)|東屯田通駅(徒歩5分) |
| 階/階建 | 2階 / 2階建 |
| 築年月 | 築1年(2024年9月) |
| 駐車場 |
あり (1万3,200円/台) 駐車可能台数:2台
来客用コインパーキング9台有り(従業員利用出来ません) |
空室確認、見学、詳細を知りたい方はこちら!
お電話の際は「連合隊の物件」とお伝えください。
情報掲載期限:あと14日(更新日 2025/11/29)
- 物件写真・概要
- 周辺地図
-
空室確認、見学、詳細を知りたい方はこちら!
おすすめポイント
- 即入居可
- 駅徒歩3分以内
- 幹線道路沿い
- 駐車2台以上可
- 出店するなら…この業種がおすすめ!
- 飲食全般(重飲食含む)

- 喫茶・カフェ(軽飲食)

- バー・クラブ・スナック

- 小売・物販

- 美容・健康・介護

- 医療

- 教育・スクール

- 事務所

- アミューズメント

交通色がついているアイコンをクリックすると、本物件までの道順を見ることができます。
物件概要
所在階/建物の階建 2階(2F-C) / 地上2階建 主要採光面 東 構造 木造 間取り 契約期間 3年間 更新料/更新手数料 なし 権利金 住宅保険 出店推奨業種 事務所 出店不可業種 引渡し 即時 管理人 巡回 取引態様 仲介 物件No 設備・特徴 - 幹線道路沿い
備考 主な周辺施設色がついているアイコンをクリックすると、本物件までの道順を見ることができます。
-
ホームページはこちら北海道知事 石狩(3) 第7905号
ハウスユー千歳店 (有)丸鍾- 加入団体
- (公社)北海道宅地建物取引業協会
- 保証協会
- (公社)全国宅地建物取引業保証協会
- 公正取引協議会
- 未加盟
※連合隊は物件情報の精度向上に努めています:「物件情報に誤りがある」「成約済みである」などお気付きの点がございましたらこちらよりご連絡ください。
写真枚数:8枚