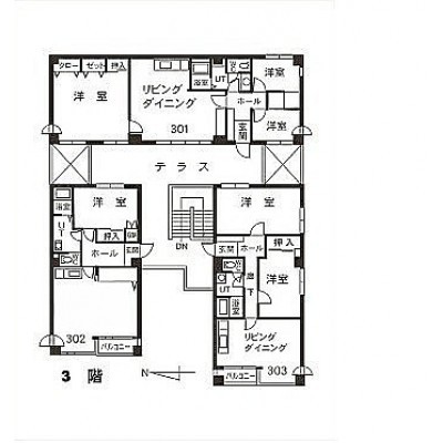
カサ・デ・バリオ301(3階部分)
ここに注目!エントランス部分が開放的な3Fの居室になります 事務所やサロンとしてのご使用も可能です 市電停留所ロープウェイ前近く、伏見小学校近く! 来客用駐車場:4台 契約時:事務手数料5,500円(税込)請求書を発行致します。R7.1.1契約開始より金額が変更になります。8,800円(税込) 広告料:請求書を契約時に持参してください。(適格番号、金額、消費税。合計など明記が必要です。)
| 賃料・費用 |
12万1,000円
(+管理費等 6,600円)
坪単価:約4,546円/坪
敷22万円仲12万1,000円
|
|---|---|
| 専有面積 | 88m² (26.62坪) |
| 住所 | 北海道札幌市中央区南十八条西14-1-23 |
| 交通 | ロープウェイ入口駅(徒歩3分)|西線16条駅(徒歩4分)|幌平橋駅(徒歩23分) |
| 階/階建 | 3階 / 3階建(地下1階) |
| 築年月 | 築41年(1984年11月) |
| 駐車場 |
あり (1万6,500円/台) 駐車可能台数:1台
地下車庫 |
空室確認、見学、詳細を知りたい方はこちら!
お電話の際は「連合隊の物件」とお伝えください。
情報掲載期限:あと12日(更新日 2025/11/29)
- 物件写真・概要
- 周辺地図
-
空室確認、見学、詳細を知りたい方はこちら!
おすすめポイント
- 即入居可
- 駅徒歩3分以内
- 駐車場あり
交通色がついているアイコンをクリックすると、本物件までの道順を見ることができます。
物件概要
所在階/建物の階建 3階(301) / 地上3階 地下1階建 主要採光面 構造 鉄筋コンクリート(RC)造 間取り 契約期間 2年間 権利金 住宅保険 出店推奨業種 出店不可業種 引渡し 即時 管理人 取引態様 仲介 物件No 設備・特徴 備考 主な周辺施設色がついているアイコンをクリックすると、本物件までの道順を見ることができます。
-
ホームページはこちら北海道知事 石狩(3) 第7905号
ハウスユー千歳店 (有)丸鍾- 加入団体
- (公社)北海道宅地建物取引業協会
- 保証協会
- (公社)全国宅地建物取引業保証協会
- 公正取引協議会
- 未加盟
※連合隊は物件情報の精度向上に努めています:「物件情報に誤りがある」「成約済みである」などお気付きの点がございましたらこちらよりご連絡ください。
写真枚数:11枚