クレストコート宮の森201号室(2階部分)
ここに注目!キッチンタイプ:システムキッチン,トイレ種類:水洗,バストイレ:別室,バス:有り,給湯:ガス,洗面所独立,照明:有り,暖房(石油暖房),洗濯機置き場:有り,インターホン:TV付,オートロック:有り,インターネット:対応,水道:公営,排水:公共下水,ガス種類:プロパン,フローリング:一部フローリング,ベランダ,トランクルーム,宅配ボックス
| 賃料・費用 |
13万5,000円(+管理費等 1万円)
敷13万5,000円(1ヶ月)仲14万8,500円
|
|---|---|
| 間取・専有 |
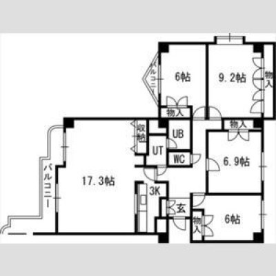
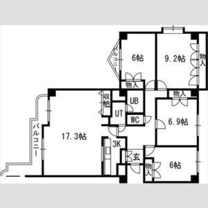
4LDK(112.78m²)
|
| 住所 | 北海道札幌市中央区宮の森二条5-2-8 |
| 交通 | 西28丁目駅(徒歩8分)|桑園駅(徒歩32分) |
| 築年月 | 築37年(1988年3月) |
| 駐車場 |
あり (1万6,500円/台)
|
空室確認、見学、詳細を知りたい方はこちら!
お電話の際は「連合隊の物件」とお伝えください。
情報掲載期限:あと13日(更新日 2025/11/29)
- 物件写真・概要
- 周辺地図
-
空室確認、見学、詳細を知りたい方はこちら!
おすすめポイント
- バス/トイレ別
- オートロック
- 2階以上
- 都市ガス
- 室内洗濯機置場
- 駐車場あり
- エアコン付
- 独立洗面台
- 追い焚き風呂
- ペット相談可
- デザイナーズ
- 敷金・礼金0円
- 近くて便利!徒歩5分以内にある施設
- 4分
4分- 5分
5分- 周辺施設を地図で確認
交通色がついているアイコンをクリックすると、本物件までの道順を見ることができます。
物件概要
所在階/建物の階建 2階(201) / 地上10階建 総戸数 31戸 主要採光面 南 構造 鉄筋コンクリート(RC)造 契約期間 2年間 住宅保険 その他費用 毎月の費用 - 24時間管理料:1,100円
一時金 - カギ交換費用::9,900円
入居可能時期 相談 管理人 取引態様 仲介 物件No 設備・特徴 - フローリング
- 納戸・トランクルーム
- システムキッチン
- オートロック
- 宅配BOX
備考 学区色がついているアイコンをクリックすると、本物件までの道順を見ることができます。
主な周辺施設色がついているアイコンをクリックすると、本物件までの道順を見ることができます。
-
ホームページはこちら北海道知事 石狩(3) 第7905号
ハウスユー千歳店 (有)丸鍾- 加入団体
- (公社)北海道宅地建物取引業協会
- 保証協会
- (公社)全国宅地建物取引業保証協会
- 公正取引協議会
- 未加盟
※連合隊は物件情報の精度向上に努めています:「物件情報に誤りがある」「成約済みである」などお気付きの点がございましたらこちらよりご連絡ください。
写真枚数:10枚