クリスタルタワー
ここに注目!市電通り面、市電停留所目の前 徒歩1分!!14階 ワンフロアー!100.24坪!!オフィスにおすすめのテナントです!!エントランスAM8時~20時まで・エレベーター3基・天井高2550㎜・立体駐車場有り、台数相談可能!!
| 賃料・費用 |
165万3,795円
(+管理費等 -円)
坪単価:約1.6万円/坪
敷1,804万1,400円仲165万3,795円
|
|---|---|
| 専有面積 | 331.38m² (100.24坪) |
| 住所 | 北海道札幌市中央区南一条西8丁目1-1 |
| 交通 | 資生館小学校前駅(徒歩7分)|西11丁目駅(徒歩7分)|西8丁目駅(徒歩1分)道順を見る |
| 階/階建 | 14階 / 15階建 |
| 築年月 | 築32年(1993年7月) |
| 駐車場 |
あり
|
【WEB面談可】
空室確認、見学、詳細を知りたい方はこちら!
お電話の際は「連合隊の物件」とお伝えください。
情報掲載期限:あと20日(更新日 2026/4/16)
- 物件写真・概要
- 周辺地図
-
【WEB面談可】
空室確認、見学、詳細を知りたい方はこちら!おすすめポイント
- 駅徒歩1分以内
- 複数路線利用可
- 駅前立地
- 駐車場あり
- エアコン付
- OAフロア
交通色がついているアイコンをクリックすると、本物件までの道順を見ることができます。
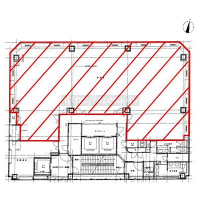
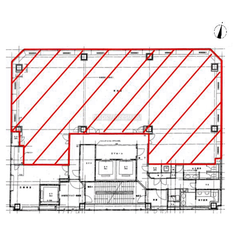
物件概要
所在階/建物の階建 14階(1401) / 地上15階建 主要採光面 構造 鉄筋コンクリート(RC)造 間取り 契約期間 権利金 住宅保険 引渡し 相談(7月上旬) 管理人 取引態様 仲介 物件No 7010706 設備・特徴 - 複数路線利用可
- 幹線道路沿い
- エレベーター
- 照明器具付
- OAフロア
- エアコン付
- 個別空調
- 商店街に面す
- 駅前立地
備考 ※エントランス(8時~20時)天井高2550㎜ 2階リフレッシュルーム 主な周辺施設色がついているアイコンをクリックすると、本物件までの道順を見ることができます。
-
※連合隊は物件情報の精度向上に努めています:「物件情報に誤りがある」「成約済みである」などお気付きの点がございましたらこちらよりご連絡ください。
写真枚数:13枚




市内全域のご案内!売買&テナント探しを全力サポート!
市電行啓通り駅、地下鉄南北線中島公園駅の両方からアクセス可能です! 豊富な物件からお客様に満足いただけるように、スタッフ全員でご対応させていただきます。