プレシャス6ビル
ここに注目!札幌市中央区南五条西、活気あふれるエリアに位置する「プレシャス6ビル」貸店舗のご紹介です。 レストラン跡のテナントです!!地下ワンフロアー・地下専用階段あり!! 地下鉄南北線・市電「すすきの駅」から徒歩4分、地下鉄東豊線「豊水すすきの駅」からも徒歩4分と、複数路線が利用できる駅近の好立地。集客に有利な商店街に面しており、周辺にはコンビニや飲食店が多数点在し、賑わいのある環境です。 専有面積165.3㎡の広々とした空間は、飲食全般(重飲食含む)、バー、カフェなど幅広い業種に対応可能です。既存の内装やレストラン設備を活かしてスムーズな開業も期待できます。エレベーター完備で、給排水設備も整っています。深夜営業のご相談も可能ですので、ビジネスの可能性が広がります。 この機会に、理想のビジネス拠点をご検討ください。詳細はお気軽にお問い合わせください。
この物件は レストラン の居抜き物件です。
現状の設備が残されたまま取引されるため、初期費用を抑え速やかに事業を開始できるメリットがあります。
この物件の契約期間は 3年間です。
定期借家物件は、賃貸借契約期間満了後、原則として契約の更新ができない物件です。再契約の可否については不動産会社にお問合せください。
| 賃料・費用 |
71万5,000円
(+管理費等 11万円)
坪単価:約1.4万円/坪
敷195万円礼195万円仲71万5,000円
|
|---|---|
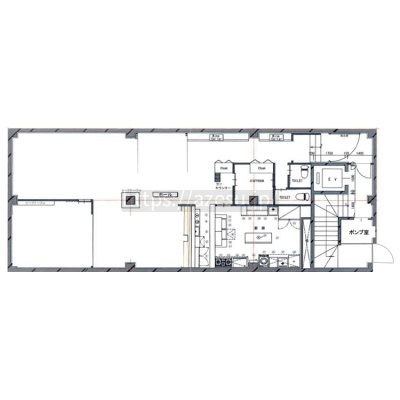
| 専有面積 | 165.3m² (50坪) |
| 住所 | 北海道札幌市中央区南五条西3丁目3 |
| 交通 | 豊水すすきの駅(徒歩4分)|すすきの駅(徒歩4分)|狸小路駅(徒歩6分)道順を見る |
| 階/階建 | 地下1階 / 4階建(地下1階) |
| 築年月 | |
| 駐車場 |
なし
|
【WEB面談可】
空室確認、見学、詳細を知りたい方はこちら!
お電話の際は「連合隊の物件」とお伝えください。
情報掲載期限:あと8日(更新日 2025/11/18)
- 物件写真・概要
- 周辺地図
-
【WEB面談可】
空室確認、見学、詳細を知りたい方はこちら!おすすめポイント
- 即入居可
- 駅徒歩5分以内
- 複数路線利用可
- 駅前立地
- 商店街に面す
- 造作譲渡料無料
- 出店するなら…この業種がおすすめ!
- 飲食全般(重飲食含む)

- 喫茶・カフェ(軽飲食)

- バー・クラブ・スナック

- 小売・物販

- 美容・健康・介護

- 医療

- 教育・スクール

- 事務所

- アミューズメント

交通色がついているアイコンをクリックすると、本物件までの道順を見ることができます。
物件概要
所在階/建物の階建 地下1階 / 地上4階 地下1階建 主要採光面 構造 間取り 契約期間 定期借家(3年間) 権利金 住宅保険 出店推奨業種 飲食全般(重飲食含む)、喫茶・カフェ(軽飲食)、バー・クラブ・スナック 出店不可業種 居抜き情報 [レストラン] の居抜き造作譲渡料 無料 特記事項 内装あり 引渡し 即時 管理人 取引態様 仲介 物件No 設備・特徴 - 商店街に面す
- 駅前立地
- エレベーター
- 給排水設備
- 深夜営業相談可
- 複数路線利用可
備考 主な周辺施設色がついているアイコンをクリックすると、本物件までの道順を見ることができます。
-
※連合隊は物件情報の精度向上に努めています:「物件情報に誤りがある」「成約済みである」などお気付きの点がございましたらこちらよりご連絡ください。
写真枚数:6枚




市内全域のご案内!売買&テナント探しを全力サポート!
市電行啓通り駅、地下鉄南北線中島公園駅の両方からアクセス可能です! 豊富な物件からお客様に満足いただけるように、スタッフ全員でご対応させていただきます。