北四条ビル
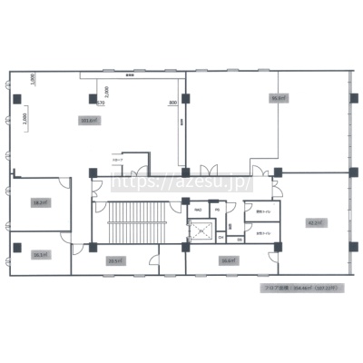
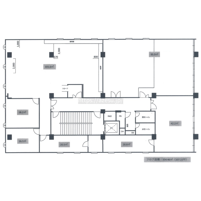
ここに注目!「北四条ビル」の4階、広々354.45㎡の貸事務所をご紹介します。 JR函館本線をはじめ複数路線が乗り入れる「札幌」駅まで徒歩5分!都心主要駅へのアクセスが良好で、ビジネスの拠点として魅力的な立地です。 駅前という好条件に加え、周辺にはコンビニ、銀行、郵便局、北海道庁、飲食店、病院などが徒歩圏内に充実。日々の業務や来客対応にも便利な環境が整っています。 ワンフロア貸しのため、354.45㎡の広々とした空間を貴社のスタイルに合わせて自由にレイアウト可能。プライバシーを保ちながら、効率的なオフィス空間を実現できます。エレベーターも完備しております。 この機会に、貴社のビジネスをさらに発展させる拠点として「北四条ビル」をご検討ください。詳細はお気軽にお問い合わせください。
| 賃料・費用 |
140万8,000円
(+管理費等 -円)
坪単価:約1.3万円/坪
敷128万円仲140万8,000円
|
|---|---|
| 専有面積 | 354.45m² (107.22坪) |
| 住所 | 北海道札幌市中央区北四条西6丁目1-3 |
| 交通 | 札幌駅(徒歩8分)|西4丁目駅(徒歩13分)|大通駅(徒歩14分)道順を見る |
| 階/階建 | 4階 |
| 築年月 | |
| 駐車場 |
なし
|
【WEB面談可】
空室確認、見学、詳細を知りたい方はこちら!
お電話の際は「連合隊の物件」とお伝えください。
情報掲載期限:あと28日(更新日 2025/12/16)
- 物件写真・概要
- 周辺地図
-
【WEB面談可】
空室確認、見学、詳細を知りたい方はこちら!おすすめポイント
- 即入居可
- 複数路線利用可
- 駅前立地
- 商店街に面す
- 幹線道路沿い
- 出店するなら…この業種がおすすめ!
- 飲食全般(重飲食含む)

- 喫茶・カフェ(軽飲食)

- バー・クラブ・スナック

- 小売・物販

- 美容・健康・介護

- 医療

- 教育・スクール

- 事務所

- アミューズメント

交通色がついているアイコンをクリックすると、本物件までの道順を見ることができます。
- 札幌駅札幌市営地下鉄南北線、札幌市営地下鉄東豊線、JR札沼線、JR千歳線、JR函館本線徒歩8分(約634m)
- 西4丁目駅札幌市電山鼻線徒歩13分(約1.1km)
- 大通駅札幌市営地下鉄南北線、札幌市営地下鉄東豊線、札幌市営地下鉄東西線徒歩14分(約1.1km)
物件概要
所在階/建物の階建 4階(ワンフロアー) 主要採光面 構造 間取り 契約期間 権利金 住宅保険 出店推奨業種 事務所 出店不可業種 引渡し 即時 管理人 取引態様 仲介 物件No 設備・特徴 - 幹線道路沿い
- 商店街に面す
- 駅前立地
- 複数路線利用可
- エレベーター
備考 主な周辺施設色がついているアイコンをクリックすると、本物件までの道順を見ることができます。
-
※連合隊は物件情報の精度向上に努めています:「物件情報に誤りがある」「成約済みである」などお気付きの点がございましたらこちらよりご連絡ください。
写真枚数:2枚




市内全域のご案内!売買&テナント探しを全力サポート!
市電行啓通り駅、地下鉄南北線中島公園駅の両方からアクセス可能です! 豊富な物件からお客様に満足いただけるように、スタッフ全員でご対応させていただきます。