COREX円山
ここに注目!札幌市中央区、 円山公園駅・西18丁目駅まで**いずれも徒歩7分**と、アクセスに優れた一棟貸店舗・事務所です。地下鉄東西線沿線でビジネスをお考えの方に、大変便利な立地です。 路面店、さらに角地に位置しているため、視認性が高く集客力も期待できます。周辺にはコンビニやスーパー、銀行、郵便局が徒歩圏内に揃い、お客様にもスタッフにも嬉しい環境です。 広々とした専有面積271.14㎡は、喫茶・カフェ、小売・物販、教育・スクールなど、多岐にわたるビジネス展開に対応可能です。給排水設備も完備しておりますので、業種に応じた柔軟なレイアウトが叶います。 ご興味をお持ちいただけましたら、ぜひお気軽にお問い合わせください。
| 賃料・費用 |
121万7,000円
(+管理費等 3万3,000円)
坪単価:約1.5万円/坪
敷663万8,184円礼121万7,000円(1ヶ月)仲121万7,000円
|
|---|---|
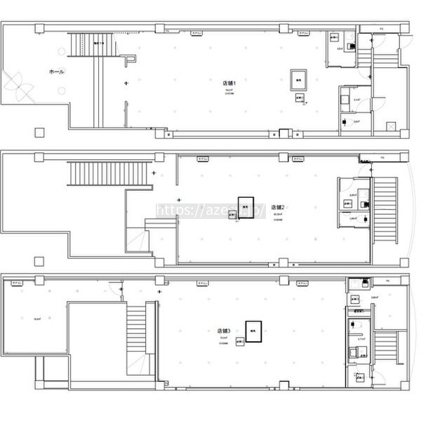
| 専有面積 | 271.14m² (82.01坪) |
| 住所 | 北海道札幌市中央区南一条西22丁目2-1 |
| 交通 | 円山公園駅(徒歩7分)|西18丁目駅(徒歩7分)|西15丁目駅(徒歩13分)道順を見る |
| 階/階建 | 3階建 |
| 築年月 | 築36年(1989年8月) |
| 駐車場 |
なし
|
【WEB面談可】
空室確認、見学、詳細を知りたい方はこちら!
お電話の際は「連合隊の物件」とお伝えください。
情報掲載期限:あと28日(更新日 2026/2/13)
- 物件写真・概要
- 周辺地図
-
【WEB面談可】
空室確認、見学、詳細を知りたい方はこちら!おすすめポイント
- 即入居可
- 駅前立地
- 商店街に面す
- 出店するなら…この業種がおすすめ!
- 飲食全般(重飲食含む)

- 喫茶・カフェ(軽飲食)

- バー・クラブ・スナック

- 小売・物販

- 美容・健康・介護

- 医療

- 教育・スクール

- 事務所

- アミューズメント

交通色がついているアイコンをクリックすると、本物件までの道順を見ることができます。
物件概要
建物の階建 地上3階建 総戸数 1戸 構造 鉄筋コンクリート(RC)造 間取り 契約期間 権利金 住宅保険 出店推奨業種 喫茶・カフェ(軽飲食)、小売・物販、教育・スクール 出店不可業種 引渡し 即時 管理人 取引態様 仲介 物件No 設備・特徴 - 商店街に面す
- 駅前立地
- 角地
- 給排水設備
備考 【路面店】 主な周辺施設色がついているアイコンをクリックすると、本物件までの道順を見ることができます。
-
※連合隊は物件情報の精度向上に努めています:「物件情報に誤りがある」「成約済みである」などお気付きの点がございましたらこちらよりご連絡ください。
写真枚数:5枚




市内全域のご案内!売買&テナント探しを全力サポート!
市電行啓通り駅、地下鉄南北線中島公園駅の両方からアクセス可能です! 豊富な物件からお客様に満足いただけるように、スタッフ全員でご対応させていただきます。