JHT北野イーストビル
ここに注目!東北通面、バス停降りてすぐ!!1階(10坪)路面のテナントです!!★飲食店等におすすめ!!駐車場有!!
| 賃料・費用 |
11万円
(+管理費等 1万5,000円)
坪単価:約1.1万円/坪
礼30万円仲11万円
|
|---|---|
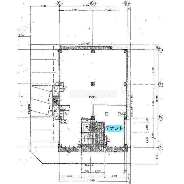
| 専有面積 | 33.06m² (10坪) |
| 住所 | 北海道札幌市清田区北野七条4丁目11-22 |
| 交通 | 大谷地駅(徒歩17分)|南郷18丁目駅(徒歩23分) |
| 階/階建 | 路面 / 3階建 |
| 築年月 | |
| 駐車場 |
あり (1万円/台)
|
【WEB面談可】
空室確認、見学、詳細を知りたい方はこちら!
お電話の際は「連合隊の物件」とお伝えください。
情報掲載期限:あと2日(更新日 2025/11/24)
- 物件写真・概要
- 周辺地図
-
【WEB面談可】
空室確認、見学、詳細を知りたい方はこちら!おすすめポイント
- 即入居可
- 路面店
- 商店街に面す
- 幹線道路沿い
- 駐車場あり
- 出店するなら…この業種がおすすめ!
- 飲食全般(重飲食含む)

- 喫茶・カフェ(軽飲食)

- バー・クラブ・スナック

- 小売・物販

- 美容・健康・介護

- 医療

- 教育・スクール

- 事務所

- アミューズメント

交通色がついているアイコンをクリックすると、本物件までの道順を見ることができます。
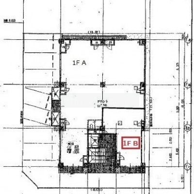
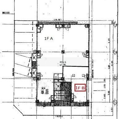
物件概要
所在階/建物の階建 1階(B) / 地上3階建 主要採光面 構造 鉄筋コンクリート(RC)造 間取り 契約期間 権利金 住宅保険 出店推奨業種 喫茶・カフェ(軽飲食)、バー・クラブ・スナック 出店不可業種 引渡し 即時 管理人 取引態様 仲介 物件No 設備・特徴 - 商店街に面す
- 幹線道路沿い
- エレベーター
- 路面店
備考 ※賃料・共益費には、別途消費税が加算されます。 お問い合わせ下さい 主な周辺施設色がついているアイコンをクリックすると、本物件までの道順を見ることができます。
-
※連合隊は物件情報の精度向上に努めています:「物件情報に誤りがある」「成約済みである」などお気付きの点がございましたらこちらよりご連絡ください。
写真枚数:9枚




市内全域のご案内!売買&テナント探しを全力サポート!
市電行啓通り駅、地下鉄南北線中島公園駅の両方からアクセス可能です! 豊富な物件からお客様に満足いただけるように、スタッフ全員でご対応させていただきます。