N・Calleビル
ここに注目!🔷♢札幌大通繁華街!1階路面(60.39坪)!♢🔷1階60.39坪・路面テナント!西5丁目通りに面した大きなガラスの路面テナントです✨
| 賃料・費用 |
219万2,157円
(+管理費等 16万9,092円)
坪単価:約3.6万円/坪
敷1,195万7,220円仲219万2,157円
|
|---|---|
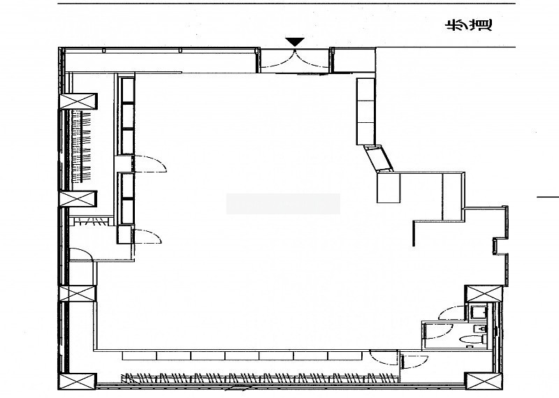
| 専有面積 | 199.64m² (60.39坪) |
| 住所 | 北海道札幌市中央区南一条西5丁目1-5 |
| 交通 | 西4丁目駅(徒歩2分)|狸小路駅(徒歩4分)|すすきの駅(徒歩6分) |
| 階/階建 | 路面 / 8階建 |
| 築年月 | 築20年(2006年1月) |
| 駐車場 |
なし
|
【WEB面談可】
空室確認、見学、詳細を知りたい方はこちら!
お電話の際は「連合隊の物件」とお伝えください。
情報掲載期限:あと12日(更新日 2025/12/23)
- 物件写真・概要
- 周辺地図
-
【WEB面談可】
空室確認、見学、詳細を知りたい方はこちら!おすすめポイント
- 路面店
- 駅徒歩3分以内
- 複数路線利用可
- 駅前立地
- 商店街に面す
- 幹線道路沿い
- 出店するなら…この業種がおすすめ!
- 飲食全般(重飲食含む)

- 喫茶・カフェ(軽飲食)

- バー・クラブ・スナック

- 小売・物販

- 美容・健康・介護

- 医療

- 教育・スクール

- 事務所

- アミューズメント

交通色がついているアイコンをクリックすると、本物件までの道順を見ることができます。
物件概要
所在階/建物の階建 1階 / 地上8階建 主要採光面 構造 鉄筋コンクリート(RC)造 間取り 契約期間 権利金 住宅保険 出店推奨業種 小売・物販、美容・健康・介護、教育・スクール 出店不可業種 その他費用 毎月の費用 - 冷暖房費:7万5,488円
引渡し 相談(8月上旬頃) 管理人 取引態様 仲介 物件No 設備・特徴 - 複数路線利用可
- 駅前立地
- 商店街に面す
- 幹線道路沿い
- 路面店
備考 主な周辺施設色がついているアイコンをクリックすると、本物件までの道順を見ることができます。
-
※連合隊は物件情報の精度向上に努めています:「物件情報に誤りがある」「成約済みである」などお気付きの点がございましたらこちらよりご連絡ください。
写真枚数:2枚




市内全域のご案内!売買&テナント探しを全力サポート!
市電行啓通り駅、地下鉄南北線中島公園駅の両方からアクセス可能です! 豊富な物件からお客様に満足いただけるように、スタッフ全員でご対応させていただきます。