『南22西11A棟テナント』⭐10月末完成!
ここに注目!石山通りに面したテナント早期募集です⭐ 2024年10月末完成予定! 駐車場も台可能です⭐ 来客用は別途コインパーキング9台可能です! 物販・医療・飲食相談に乗ります⭐ スケルトン渡しになりますので業種によって設計施工お客様の方でお願いいたします! 新築物件は完成予定前に決まることがありますので、お早めにご検討いただくことを お勧めいたします⭐ 人気エリアに付き問合せが多い物件です。 物件が無くなる前にお電話下さい!
| 賃料・費用 |
22万9,900円
(+管理費等 3,300円)
坪単価:約1.1万円/坪
敷62万7,000円仲22万9,900円
|
|---|---|
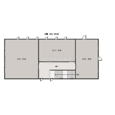
| 専有面積 | 69.28m² (20.95坪) |
| 住所 | 北海道札幌市中央区南二十二条西11丁目1-16 |
| 交通 | 石山通駅(徒歩3分)|東屯田通駅(徒歩5分)|中央図書館前駅(徒歩7分)|電車事業所前駅(徒歩11分)|幌南小学校前駅(徒歩11分) |
| 階/階建 | 2階 / 2階建 |
| 築年月 | 築1年(2024年9月) |
| 駐車場 |
あり (1万9,800円/台) 駐車可能台数:5台
来客専用恋運パーキング有9台可能! |
【WEB面談可】
空室確認、見学、詳細を知りたい方はこちら!
お電話の際は「連合隊の物件」とお伝えください。
情報掲載期限:あと18日(更新日 2025/12/15)
- 物件写真・概要
- 周辺地図
-
【WEB面談可】
空室確認、見学、詳細を知りたい方はこちら!おすすめポイント
- 駅徒歩3分以内
- 複数路線利用可
- 幹線道路沿い
- 駐車2台以上可
- スケルトン
- デザイナーズ
- エアコン付
- 出店するなら…この業種がおすすめ!
- 飲食全般(重飲食含む)

- 喫茶・カフェ(軽飲食)

- バー・クラブ・スナック

- 小売・物販

- 美容・健康・介護

- 医療

- 教育・スクール

- 事務所

- アミューズメント

※出店不可の業種:重飲食(軽飲食は相談可)、水商売、アミューズメント
交通色がついているアイコンをクリックすると、本物件までの道順を見ることができます。
- 石山通駅札幌市電山鼻線駅近!徒歩3分(約180m)
- 東屯田通駅札幌市電山鼻線徒歩5分(約337m)
- 中央図書館前駅札幌市電山鼻線徒歩7分(約502m)
- 電車事業所前駅札幌市電山鼻線徒歩11分(約811m)
- 幌南小学校前駅札幌市電山鼻線徒歩11分(約802m)
物件概要
所在階/建物の階建 2階(2F-C) / 地上2階建 主要採光面 東 構造 木造 間取り その他その他 契約期間 3年間 権利金 住宅保険 出店推奨業種 飲食全般(重飲食含む)、小売・物販、医療 出店不可業種 重飲食(軽飲食は相談可)、水商売、アミューズメント 引渡し 2024年10月下旬 管理人 取引態様 仲介 物件No 665136 設備・特徴 - 複数路線利用可
- 幹線道路沿い
- デザイナーズ
- 照明器具付
- ガス設備
- 給排水設備
- エアコン付
- スケルトン
- オススメ物件
備考 2024年10月末完成予定新築物件⭐ 駐車場も5台可能(来客用は9台可) 飲食、物販、医療相談になります! 人気ビルに付き、早期に成約になる場合が御座いますので予めご了承ください。 主な周辺施設色がついているアイコンをクリックすると、本物件までの道順を見ることができます。
-
ホームページはこちら
北海道知事 石狩(3) 第8104号
(株)内池の不動産 【WEB面談可】〒060-0002
TEL:011-280-4118
FAX:011-280-4119
営業時間:9:00~17:00
定休日:毎週 土曜・日曜・祝日
- 保証協会
- (公社)全国宅地建物取引業保証協会
※連合隊は物件情報の精度向上に努めています:「物件情報に誤りがある」「成約済みである」などお気付きの点がございましたら こちら よりご連絡ください。
写真枚数:12枚
札幌のテナント探しはテナント仲介専門の弊社へお任せください☆
新鮮な情報をより正確に!創業当時より忠実に守っているスローガンです。