南8西4事務所【⭐P3台無料!】
ここに注目!⭐すすきのホテル街のデザイナーズビル39坪!天井の高いロフト造り⭐駐車場3台無料も便利です♪部屋の特徴を生かしてデザイン事務所やスタジオなど使い方は貴方のアイディア次第。出店の可否業態はお問い合わせ下さいませ。
| 賃料・費用 |
44万円
(+管理費等 なし)
坪単価:約1.1万円/坪
敷120万円礼40万円仲44万円
|
|---|---|
| 専有面積 | 131.82m² (39.87坪) |
| 住所 | 北海道札幌市中央区南八条西4丁目424-22 |
| 交通 | 中島公園駅(徒歩5分)|東本願寺前駅(徒歩5分)|すすきの駅(徒歩8分)|山鼻9条駅(徒歩8分)|豊水すすきの駅(徒歩9分)道順を見る |
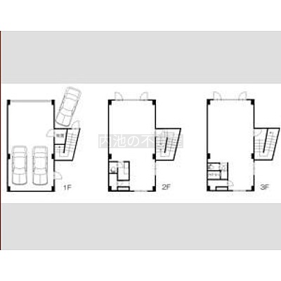
| 階/階建 | 路面 / 3階建 |
| 築年月 | 築24年(2001年12月) |
| 駐車場 |
あり (無料) 駐車可能台数:3台
※青空1台+車庫内2台 |
【WEB面談可】
空室確認、見学、詳細を知りたい方はこちら!
お電話の際は「連合隊の物件」とお伝えください。
情報掲載期限:あと28日(更新日 2026/4/27)
- 物件写真・概要
- 周辺地図
-
【WEB面談可】
空室確認、見学、詳細を知りたい方はこちら!おすすめポイント
- 即入居可
- 路面店
- 駅徒歩5分以内
- 複数路線利用可
- 駐車2台以上可
- デザイナーズ
- 男女別トイレ
- 出店するなら…この業種がおすすめ!
- 飲食全般(重飲食含む)

- 喫茶・カフェ(軽飲食)

- バー・クラブ・スナック

- 小売・物販

- 美容・健康・介護

- 医療

- 教育・スクール

- 事務所

- アミューズメント

交通色がついているアイコンをクリックすると、本物件までの道順を見ることができます。
- 中島公園駅札幌市営地下鉄南北線徒歩5分(約394m)
- 東本願寺前駅札幌市電山鼻線徒歩5分(約397m)
- すすきの駅札幌市営地下鉄南北線、札幌市電山鼻線徒歩8分(約575m)
- 山鼻9条駅札幌市電山鼻線徒歩8分(約621m)
- 豊水すすきの駅札幌市営地下鉄東豊線徒歩9分(約703m)
物件概要
所在階/建物の階建 1階(1) / 地上3階建 主要採光面 北 構造 鉄筋コンクリート(RC)造 間取り 契約期間 権利金 住宅保険 出店推奨業種 事務所 出店不可業種 その他費用 一時金 - 初回保証料:38万5,000円
引渡し 即時 管理人 取引態様 仲介 物件No 3804021 設備・特徴 - 複数路線利用可
- デザイナーズ
- 照明器具付
- ガス設備
- 給排水設備
- 24時間利用可
- 路面店
- 男女別トイレ
備考 駅近物件 駐車場3台【無料】 デザイナーズ物件 大型物件 近隣月極駐車場有り 1階路面店 すすきのエリア 給排水個別有り トイレ個別有り 事務所(オフィス) ※諸条件ご相談ください。 主な周辺施設色がついているアイコンをクリックすると、本物件までの道順を見ることができます。
-
ホームページはこちら
北海道知事 石狩(3) 第8104号
(株)内池の不動産 【WEB面談可】〒060-0002
TEL:011-280-4118
FAX:011-280-4119
営業時間:9:00~17:00
定休日:毎週 土曜・日曜・祝日
- 保証協会
- (公社)全国宅地建物取引業保証協会
※連合隊は物件情報の精度向上に努めています:「物件情報に誤りがある」「成約済みである」などお気付きの点がございましたら こちら よりご連絡ください。
写真枚数:19枚
札幌のテナント探しはテナント仲介専門の弊社へお任せください☆
新鮮な情報をより正確に!創業当時より忠実に守っているスローガンです。