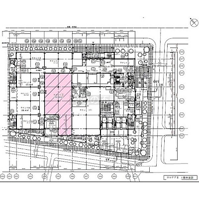
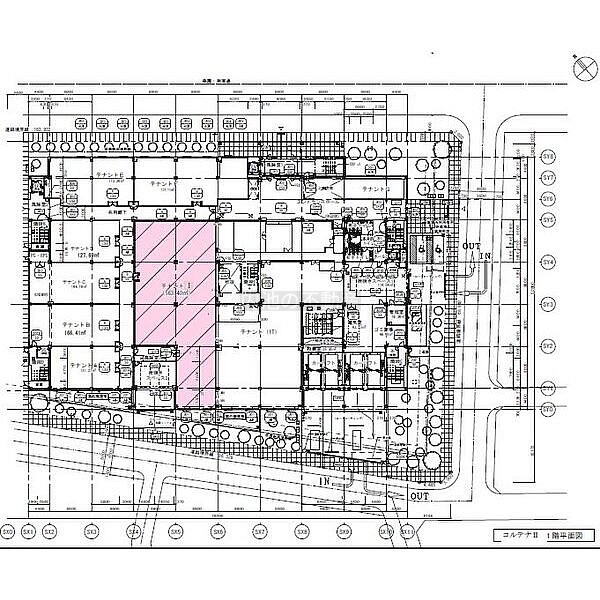
コルテナⅡ【約170坪スケルトン】
ここに注目!★西区・琴似駅前エリア★ 大型テナントに空きがでました。クリニックはもちろんの事、物販や美容家など気軽にご相談ください。 大型でお手頃物件はスグに成約になりますので、早めにご検討ください。
この物件の契約期間は 5年間です。
定期借家物件は、賃貸借契約期間満了後、原則として契約の更新ができない物件です。再契約の可否については不動産会社にお問合せください。
| 賃料・費用 |
168万6,960円
(+管理費等 37万4,880円)
坪単価:約9,900円/坪
敷920万1,600円仲168万6,960円
|
|---|---|
| 専有面積 | 563.31m² (170.4坪) |
| 住所 | 北海道札幌市西区琴似四条2丁目1-2 |
| 交通 | 琴似駅(徒歩8分)|琴似駅(徒歩11分)道順を見る |
| 階/階建 | 1階 / 4階建 |
| 築年月 | 築13年(2013年1月) |
| 駐車場 |
あり
コルテナⅠ コインパーキング使用可能 |
【WEB面談可】
空室確認、見学、詳細を知りたい方はこちら!
お電話の際は「連合隊の物件」とお伝えください。
新着 情報掲載期限:あと29日(更新日 2026/1/9)
- 物件写真・概要
- 周辺地図
-
【WEB面談可】
空室確認、見学、詳細を知りたい方はこちら!おすすめポイント
- 即入居可
- 複数路線利用可
- 駅前立地
- 商店街に面す
- 幹線道路沿い
- 駐車場あり
- 出店するなら…この業種がおすすめ!
- 飲食全般(重飲食含む)

- 喫茶・カフェ(軽飲食)

- バー・クラブ・スナック

- 小売・物販

- 美容・健康・介護

- 医療

- 教育・スクール

- 事務所

- アミューズメント

交通色がついているアイコンをクリックすると、本物件までの道順を見ることができます。
物件概要
所在階/建物の階建 1階 / 地上4階建 主要採光面 構造 鉄骨造 間取り 契約期間 定期借家(5年間) 権利金 住宅保険 出店推奨業種 小売・物販、美容・健康・介護、医療 出店不可業種 その他費用 一時金 - 初回保証料:206万1,840円
引渡し 即時 管理人 取引態様 仲介 物件No 5712250 設備・特徴 - 駅前立地
- 複数路線利用可
- 幹線道路沿い
- 商店街に面す
- オススメ物件
- 大型
備考 ★医療★クリニック★物販★美容系★ジム★などにオススメです。 人気ビルに付き、早期に成約になる場合が御座いますので予めご了承ください。 主な周辺施設色がついているアイコンをクリックすると、本物件までの道順を見ることができます。
-
ホームページはこちら
北海道知事 石狩(3) 第8104号
(株)内池の不動産 【WEB面談可】〒060-0002
TEL:011-280-4118
FAX:011-280-4119
営業時間:9:00~17:00
定休日:毎週 土曜・日曜・祝日
- 保証協会
- (公社)全国宅地建物取引業保証協会
※連合隊は物件情報の精度向上に努めています:「物件情報に誤りがある」「成約済みである」などお気付きの点がございましたら こちら よりご連絡ください。
写真枚数:29枚
札幌のテナント探しはテナント仲介専門の弊社へお任せください☆
新鮮な情報をより正確に!創業当時より忠実に守っているスローガンです。