裁判所至近⭐『212ビル』オフィス募集!!
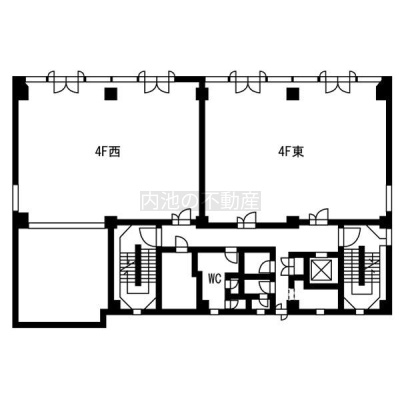
ここに注目!札幌市中央区南二条西に位置する『212ビル』より、魅力的なオフィスが募集開始です! 札幌市電山鼻線「西15丁目」駅まで徒歩5分、札幌市営地下鉄東西線・札幌市電山鼻線「西11丁目」駅まで徒歩5分と、複数路線が利用できアクセス良好です。 裁判所至近という立地は、弁護士事務所や司法書士事務所などの士業の方々に適しています。広々とした約122.18㎡(約37坪)の空間は、スケルトン仕様のため自由なレイアウトが可能。デザイナーズ物件ならではの洗練された空間で、新たなビジネスを始めてみませんか? エアコン、エレベーター、光ファイバー、照明器具など設備も充実。立体駐車場も2台分(月額22,000円/台)ご用意しています。周辺にはコンビニ、飲食店、郵便局、区役所などがあり、ビジネスをサポートする環境も整っています。IT企業やデザイン事務所など、広い空間を自由に活用したい業種にもおすすめです。 この機会にぜひ一度ご内覧ください。お問い合わせをお待ちしております。
| 賃料・費用 |
30万4,920円
(+管理費等 6万984円)
坪単価:約8,253円/坪
敷110万8,800円仲30万4,920円
|
|---|---|
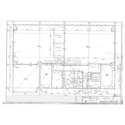
| 専有面積 | 122.18m² (36.95坪) |
| 住所 | 北海道札幌市中央区南二条西12丁目323番地 |
| 交通 | 西15丁目駅(徒歩5分)|西11丁目駅(徒歩5分)|西8丁目駅(徒歩7分)|西18丁目駅(徒歩12分)道順を見る |
| 階/階建 | 4階 / 6階建 |
| 築年月 | 築35年(1990年3月) |
| 駐車場 |
あり (2万2,000円/台) 駐車可能台数:2台
立体駐車場 |
【WEB面談可】
空室確認、見学、詳細を知りたい方はこちら!
お電話の際は「連合隊の物件」とお伝えください。
情報掲載期限:あと5日(更新日 2026/1/19)
- 物件写真・概要
- 周辺地図
-
【WEB面談可】
空室確認、見学、詳細を知りたい方はこちら!おすすめポイント
- 即入居可
- 駅徒歩5分以内
- 複数路線利用可
- 駐車2台以上可
- スケルトン
- デザイナーズ
- エアコン付
- 光ファイバー
交通色がついているアイコンをクリックすると、本物件までの道順を見ることができます。
- 西15丁目駅札幌市電山鼻線徒歩5分(約342m)
- 西11丁目駅札幌市電山鼻線、札幌市営地下鉄東西線徒歩5分(約345m)
- 西8丁目駅札幌市電山鼻線徒歩7分(約547m)
- 西18丁目駅札幌市営地下鉄東西線徒歩12分(約942m)
物件概要
所在階/建物の階建 4階(4-西) / 地上6階建 主要採光面 北 構造 鉄筋コンクリート(RC)造 間取り その他4階:その他 契約期間 3年間 権利金 住宅保険 引渡し 即時 管理人 取引態様 仲介 物件No 6711266 設備・特徴 - 複数路線利用可
- エレベーター
- デザイナーズ
- 照明器具付
- エアコン付
- ブロードバンド回線(光ファイバー等の高速インターネット)
- スケルトン
- オススメ物件
備考 主な周辺施設色がついているアイコンをクリックすると、本物件までの道順を見ることができます。
-
ホームページはこちら
北海道知事 石狩(3) 第8104号
(株)内池の不動産 【WEB面談可】〒060-0002
TEL:011-280-4118
FAX:011-280-4119
営業時間:9:00~17:00
定休日:毎週 土曜・日曜・祝日
- 保証協会
- (公社)全国宅地建物取引業保証協会
※連合隊は物件情報の精度向上に努めています:「物件情報に誤りがある」「成約済みである」などお気付きの点がございましたら こちら よりご連絡ください。
写真枚数:11枚
札幌のテナント探しはテナント仲介専門の弊社へお任せください☆
新鮮な情報をより正確に!創業当時より忠実に守っているスローガンです。