MARUYAMA RH HILLS
ここに注目!札幌市中央区大通西に、待望の「MARUYAMA RH HILLS」が誕生しました!2025年9月築の、まだ誰も足を踏み入れていない真新しい空間です。 札幌市営地下鉄東西線「円山公園」駅へ徒歩5分、「西18丁目」駅へ徒歩7分と、複数路線が利用できるため、お客様にもスタッフの方にもアクセスしやすいのが魅力です。広々44.32㎡の1LDKは、洗練されたデザイナーズ仕様。エアコンやエレベーターも完備されており、快適なビジネス環境をサポートします。 初期費用を賢く抑えたい方には、嬉しい2ヶ月間のフリーレントをご用意しました。新しいスタートを力強く後押しいたします。特に、喫茶・カフェ(軽飲食)や美容・健康・介護、そして事務所利用にぴったりの物件です。 スーパーやコンビニ、銀行、郵便局、保育園なども徒歩圏内に揃い、日々の業務はもちろん、暮らしにも便利な環境が整っています。この素晴らしい新築空間で、あなたのビジネスを大きく飛躍させてみませんか?
この物件は、入居後2ヶ月分の賃料が無料になります。
契約時の初期費用を抑えることができるメリットがあります。違約金などは不動産会社にお問合せください。
この物件の契約期間は 5年間です。
定期借家物件は、賃貸借契約期間満了後、原則として契約の更新ができない物件です。再契約の可否については不動産会社にお問合せください。
| 賃料・費用 |
17万7,012円
(+管理費等 なし)
坪単価:約1.3万円/坪
敷48万2,760円礼なし仲17万7,012円
保証金:なし/敷引・償却金:なし
|
|---|---|
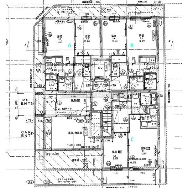
| 専有面積 | 44.32m² (13.4坪) |
| 住所 | 北海道札幌市中央区大通西22-3-2 |
| 交通 | 西28丁目駅(徒歩14分)|西15丁目駅(徒歩15分)|西11丁目駅(徒歩19分)|円山公園駅(徒歩5分)|西18丁目駅(徒歩7分)道順を見る |
| 階/階建 | 1階 / 4階建 |
| 築年月 | 新築(2025年9月) |
| 駐車場 |
近隣月極駐車場
|
空室確認、見学、詳細を知りたい方はこちら!
お電話の際は「連合隊の物件」とお伝えください。
新着 情報掲載期限:あと29日(更新日 2025/12/25)
- 物件写真・概要
- 周辺地図
-
空室確認、見学、詳細を知りたい方はこちら!
おすすめポイント
- 即入居可
- 駅徒歩5分以内
- 複数路線利用可
- 幹線道路沿い
- デザイナーズ
- エアコン付
- 出店するなら…この業種がおすすめ!
- 飲食全般(重飲食含む)

- 喫茶・カフェ(軽飲食)

- バー・クラブ・スナック

- 小売・物販

- 美容・健康・介護

- 医療

- 教育・スクール

- 事務所

- アミューズメント

交通色がついているアイコンをクリックすると、本物件までの道順を見ることができます。
- 西28丁目駅札幌市営地下鉄東西線徒歩14分(約1.2km)
- 西15丁目駅札幌市電山鼻線徒歩15分(約1.2km)
- 西11丁目駅札幌市電山鼻線、札幌市営地下鉄東西線徒歩19分(約1.5km)
- 円山公園駅札幌市営地下鉄東西線徒歩5分(約516m)
- 西18丁目駅札幌市営地下鉄東西線徒歩7分(約578m)
物件概要
所在階/建物の階建 1階(102) / 地上4階建 主要採光面 構造 鉄筋コンクリート(RC)造 間取り 1LDK 契約期間 定期借家(5年間) 更新料/更新手数料 なし / なし 権利金 なし フリーレント あり(フリーレント期間2ヶ月) 住宅保険 出店推奨業種 喫茶・カフェ(軽飲食)、美容・健康・介護、事務所 出店不可業種 引渡し 即時 管理人 無 取引態様 仲介 物件No 設備・特徴 - 複数路線利用可
- 幹線道路沿い
- エレベーター
- デザイナーズ
- ガス設備
- 給排水設備
- エアコン付
備考 円山エリアの大人気新築エリア♪ 主な周辺施設色がついているアイコンをクリックすると、本物件までの道順を見ることができます。
-
ホームページはこちら
北海道知事 石狩(3) 第8128号
北章ハウザー 東店 (株)ハウスプロデュース
※連合隊は物件情報の精度向上に努めています:「物件情報に誤りがある」「成約済みである」などお気付きの点がございましたらこちらよりご連絡ください。
写真枚数:12枚
テナント物件のお探しなら是非北章ハウザー東店へ!!
豊富な知識を持ったスタッフがお客様にとってぴったりなテナントをご提案させていただきます。店舗前6台駐車可能なのでお気軽にご来店ください!その他ご相談もお待ちしております!