CREST西新
| 賃料・費用 |
69万360円
(+管理費等 -円)
坪単価:約2.2万円/坪
敷690万3,600円(10ヶ月)仲69万360円
|
|---|---|
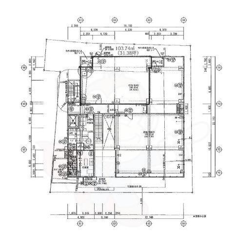
| 専有面積 | 103.74m² (31.38坪) |
| 住所 | 福岡県福岡市早良区西新 (詳細非公開) |
| 交通 | 西新駅(徒歩2分)|藤崎駅(徒歩12分)|唐人町駅(徒歩17分)|別府駅(徒歩22分) |
| 階/階建 | 2階 / 13階建 |
| 築年月 | 新築(2025年2月) |
| 駐車場 |
なし
|
空室確認、見学、詳細を知りたい方はこちら!
お電話の際は「連合隊の物件」とお伝えください。
情報掲載期限:あと30日(更新日 2025/12/16)
- 物件写真・概要
- 周辺地図
-
空室確認、見学、詳細を知りたい方はこちら!
おすすめポイント
- 即入居可
- 駅徒歩3分以内
- スケルトン
交通
- 西新駅福岡市営地下鉄空港線駅近!徒歩2分(約109m)
- 藤崎駅福岡市営地下鉄空港線徒歩12分(約921m)
- 唐人町駅福岡市営地下鉄空港線徒歩17分(約1.4km)
- 別府駅福岡市営地下鉄七隈線徒歩22分(約1.8km)
物件概要
所在階/建物の階建 2階(2B) / 地上13階建 主要採光面 構造 鉄筋コンクリート(RC)造 間取り 契約期間 2年間 権利金 住宅保険 出店推奨業種 出店不可業種 引渡し 即時 管理人 取引態様 仲介 物件No 10529T00453002 設備・特徴 - その他インターネット
- スケルトン
- その他:排水(公共下水接続済)・電気(メーター)・水道(公営)・インターネット料金形態(別途)
備考 店舗 事務所 主な周辺施設
- マックスバリュエクスプレス 西新店約169m(徒歩3分)
- ハローデイ 西新店約258m(徒歩4分)
- セブンイレブン 福岡中西商店街店約157m(徒歩2分)
- セブンイレブン 福岡西新中央店約205m(徒歩3分)
- 福岡信用金庫 西新支店約136m(徒歩2分)
- 福岡銀行 西新町支店約150m(徒歩2分)
- 福岡城西郵便局約470m(徒歩6分)
- ドラッグイレブン 西新店約40m(徒歩1分)
- ドラッグセガミ 西新店約60m(徒歩1分)
- ダイソー マックスバリュエクスプレス西新店約172m(徒歩3分)
-
※連合隊は物件情報の精度向上に努めています:「物件情報に誤りがある」「成約済みである」などお気付きの点がございましたらこちらよりご連絡ください。
写真枚数:16枚
外観
外観
エントランス
エントランス
その他共用部
内装
内装
内装
内装
内装
その他設備
その他設備
その他
その他設備
福岡市内と近郊エリアのテナント・事務所は賃貸住宅サービス西新店にお任せください!
独立・開業・移転等 福岡市内・近郊エリアの事業用物件をお探しの際は何でもご相談下さいませ。居抜き物件も多数取扱いしておりますよ!まずはお気軽にお問合せ下さいませ!