エム・スクエア
ここに注目!JR筑肥線「今宿駅」まで徒歩10分!アクセス良好な貸店舗・貸事務所「エム・スクエア」のご紹介です。 周辺にはドラッグストア(マツモトキヨシ今宿店まで徒歩2分)、コンビニ(ファミリーマート福岡今宿三丁目店まで徒歩3分)、スーパー、病院、飲食店などが充実しており、日常生活やビジネスの利便性も期待できる環境です。 広々とした約49.5㎡の空間は、小売・物販、美容・健康・介護、事務所など、幅広い業種でご検討いただけます。 注目ポイントは、なんと管理費が0円、そして礼金も0円!初期費用を抑えて新しいビジネスをスタートできる、嬉しい条件が揃っています。 ガス・給排水設備も完備。新たな事業拠点をお探しの方、この機会をぜひご活用ください。 詳細につきましては、どうぞお気軽にお問い合わせください!
| 賃料・費用 |
13万1,700円
(+管理費等 なし)
坪単価:約8,798円/坪
敷71万8,560円礼なし仲13万1,700円
保証金:なし
|
|---|---|
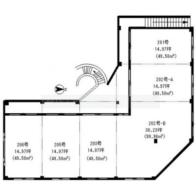
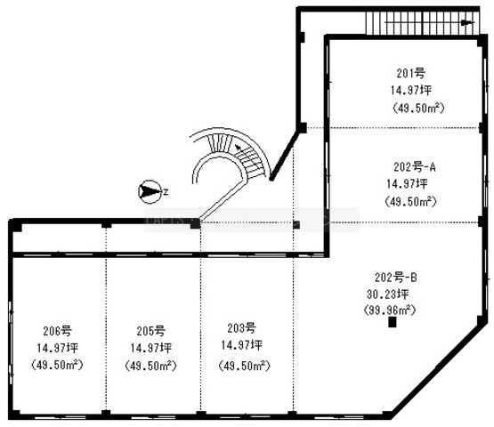
| 専有面積 | 49.5m² (14.97坪) |
| 住所 | 福岡県福岡市西区今宿2-5-4 |
| 交通 | 今宿駅(徒歩10分)道順を見る |
| 階/階建 | 2階 / 2階建 |
| 築年月 | 築27年(1998年4月) |
| 駐車場 |
なし
|
【WEB面談可】
空室確認、見学、詳細を知りたい方はこちら!
お電話の際は「連合隊の物件」とお伝えください。
情報掲載期限:あと28日(更新日 2025/12/15)
- 物件写真・概要
- 周辺地図
-
【WEB面談可】
空室確認、見学、詳細を知りたい方はこちら!- 出店するなら…この業種がおすすめ!
- 飲食全般(重飲食含む)

- 喫茶・カフェ(軽飲食)

- バー・クラブ・スナック

- 小売・物販

- 美容・健康・介護

- 医療

- 教育・スクール

- 事務所

- アミューズメント

交通色がついているアイコンをクリックすると、本物件までの道順を見ることができます。
物件概要
所在階/建物の階建 2階 / 地上2階建 主要採光面 構造 鉄骨造 間取り 契約期間 2年間 権利金 なし 住宅保険 お問合せください 出店推奨業種 小売・物販、美容・健康・介護、事務所 出店不可業種 引渡し 相談 管理人 取引態様 仲介 物件No 設備・特徴 - ガス設備
- 給排水設備
備考 主な周辺施設色がついているアイコンをクリックすると、本物件までの道順を見ることができます。
-
ホームページはこちら
福岡県知事 (1) 第20677号
(株)LAPIS・ビジネスマネジメント 【WEB面談可】- 加入団体
- (公社)福岡県宅地建物取引業協会
- 保証協会
- (公社)全国宅地建物取引業保証協会
※連合隊は物件情報の精度向上に努めています:「物件情報に誤りがある」「成約済みである」などお気付きの点がございましたらこちらよりご連絡ください。
写真枚数:8枚
福岡市及び近郊の貸店舗・テナント物件・事務所ならLAPIS・ビジネスマネジメントにおまかせ♪
飲食店・美容室・エステサロン・病院などの貸店舗・テナント物件・事務所をお探しの方へ。非公開の物件等も多数ございますので、まずはお気軽にお問合せください。当社HP:https://lbmlapis.com/forbusinessuse